Ingatlan Televízió
Ingatlan Televízió
további hirdetések
adatlap bezárása

Budapest, XIII.kerület 
 

Hivatkozási szám: 5903040
Ingatlan adatai
Irányár: 102 000 000 Ft
Típus: lakás (tégla)
Kategória: eladó
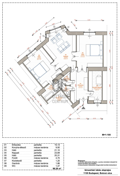
Alapterület: 98 m2
Fűtés: gáz (konvektor)
Állapota: -
Szobák száma: 3
Építés éve: -
Szintek száma: -
Részletes leírás
POLGÁRI ELEGANCIA ÉS BERUHÁZÓI FŐNYEREMÉNY! 98 m²-es, Felújítandó Nagy Polgári Lakás a Lehel Csarnoknál –
Lokáció: Budapest XIII. kerület, Lőportárdűlő, Bulcsú utca (Lehel Csarnok mellett) Méret: 98 m² Szobák: 3 (nappali + 2 szoba) + külön konyha Ár: 107 M Ft

BELVÁROSI RITKASÁG, HATALMAS POTENCIÁL!

Megvásárolható egy autentikus, századfordulós épületben található, 98 nm-es nagypolgári lakás, a XIII. kerület egyik legjobb közlekedési csomópontjánál, a Lehel Csarnok szomszédságában. Az ingatlan ára tükrözi a felújítandó állapotot, ami a legtöbb befektető álma! A 3,8 méteres belmagasság és a kiváló adottságú 3 szoba/2 fürdő elrendezés lehetővé teszi, hogy egy minimalista, modern otthont, vagy akár két, könnyen kiadható lakást hozzon létre. Ezen a felkapott környéken a felújítás utáni értéknövekedés garantált! Nézze meg a képeket, hogy a jelen állapotból milyen lakás is kialakítható, a belsőépítészeti látványtervek megmutatják milyen is lehet ez a kiváló polgári lakás a város szívében!

Lokáció: A Város Pulzusa – Lehel Csarnok/Nyugati Tér

A Lőportárdűlő és a Bulcsú utca a XIII. kerület fiatalos, dinamikusan fejlődő része, amely tökéletes egyensúlyt kínál a belváros és a szolgáltatások között.
Páratlan Központi Elhelyezkedés: A közeli Lehel Csarnok nemcsak friss élelmiszer-beszerzési lehetőséget biztosít, de igazi közösségi találkozóhely is.
Karnyújtásnyira az Üzleti Negyed: Az irodaházak, üzleti központok néhány perc alatt elérhetők.

Környéki Kényelem: A szomszédság tele van trendi kávézókkal, éttermekkel és zöld területekkel, amelyek lehetőséget adnak a pihenésre és kikapcsolódásra.
Infrastruktúra: A Legjobb Csomópontnál
Ez az ingatlan azoknak ideális, akik autó helyett a tömegközlekedést részesítik előnyben, mivel minden elérhető egy háztömbnyi távolságon belül:

Metró: M3-as metró.
Villamos: 14-es villamos.
Buszok/Trolik: 76/79-es troli, 15-ös busz, busz végállomás.
Nyugati Tér: Pár perc alatt elérhető.

A Lakás: Történelmi Alapok, Modern Jövő

A századfordulós házban található lakás az impozáns 3,8 méteres belmagasságával azonnal magával ragad. A tágas terek és az átgondolt elosztás – 3 külön szoba, külön konyha és 2 fürdőszoba – kiváló kiindulási alapot nyújtanak.

Felújítási Potenciál:

A lakás jelenlegi, felújítandó állapota teljes szabadságot ad az átalakításra, legyen szó egy luxus polgári otthon kialakításáról, vagy a belső terek modern, kreatív átstrukturálásáról.

A gázkonvektoros fűtés modern fűtésrendszerre cserélhető (pl. cirkó vagy hőszivattyú).

A műanyag, dupla hőszigetelt ablakok már beépítésre kerültek, ami egy jelentős költségtényezőtől megszabadítja az új tulajdonost!
Kényelmi extrák: Klíma és biztonsági ajtó már rendelkezésre áll.
A tehermentes ingatlan gyors és zökkenőmentes birtokbavételt tesz lehetővé.
Ne csak nézze, Lássa meg a Lehetőséget!
Ha Ön egy értékálló befektetést, vagy egy személyre szabott, központi otthont keres, ahol a saját ízlését valósíthatja meg, akkor ne habozzon!

Kérem, keressen meg minket még ma, hogy bemutathassuk Önnek ennek a nagypolgári ingatlannak a kivételes adottságait! Várjuk hívását egy személyes megtekintés egyeztetésére!
További adatok
Telekterület: -
Kert mérete: -
Erkély mérete: -
Felszereltség: -
Parkolás: -
Kilátás: utcai
Egyéb extrák:  
Hirdető adatai
Hirdető neve: Otthon Centrum
Kapcsolattartó: Lippai Zsolt
Hirdető telefonszáma: +36 70 716 9861
Honlap: -
 
Üzenetet küldhet a hirdetőnek, árajánlatot tehet az ingatlanra:
Az Ön neve:
Az Ön e-mail címe:
Üzenet: