Ingatlan Televízió
Ingatlan Televízió
további hirdetések
adatlap bezárása

Pécs 
 

Hivatkozási szám: 5903179
Ingatlan adatai
Irányár: 55 000 000 Ft
Típus: lakás (újépítésű)
Kategória: eladó
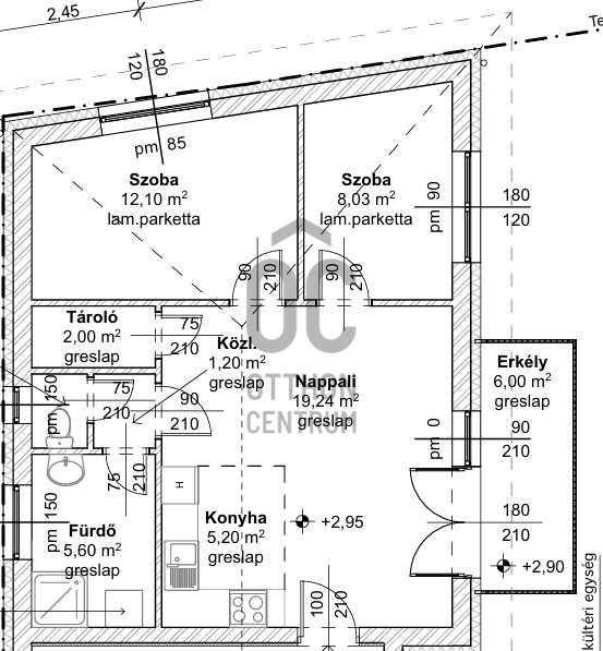
Alapterület: 54 m2
Fűtés: -
Állapota: új
Szobák száma: 3
Építés éve: 2026
Szintek száma: -
Részletes leírás
Az első közös lakás nemcsak egy álom beteljesülése, hanem egy jövőbe mutató döntés is.

Pécs egyik csendes, jól megközelíthető környékén található ez az 54,4 m²-es, új építésű, első emeleti lakás,
praktikus, 2 szoba, nappali elrendezéssel, amely tökéletes teret ad a közös élethez – és később akár egy növekvő családhoz is.
Az ingatlan épül..2026.végén költözhető, modern műszaki tartalommal.

A korszerű hőszivattyús fűtés alacsony rezsit és hosszú távú fenntarthatóságot jelent – kevesebb kiadás, több lehetőség.
A 6 m²-es erkély nemcsak egy szerethető élettér, hanem olyan extra, amely növeli az ingatlan piaci értékét és bérbeadhatóságát is.
A nyugodt környezet, a zöld területek közelsége és Pécs folyamatosan keresett lakáspiaca biztosítja, hogy ez az otthon később is könnyen értékesíthető vagy kiadható legyen.

Ha olyan első otthont kerestek, amely ma a közös életetek színtere, holnap pedig biztos befektetés,
vegyétek fel velem a kapcsolatot, és ismerjétek meg ezt a lehetőséget személyesen!
További adatok
Telekterület: -
Kert mérete: -
Erkély mérete: 6 m2
Felszereltség: -
Parkolás: -
Kilátás: udvari
Egyéb extrák:  
Hirdető adatai
Hirdető neve: Otthon Centrum
Kapcsolattartó: Bayerné Erős Brigitta
Hirdető telefonszáma: +36 70 412 3411
Honlap: -
 
Üzenetet küldhet a hirdetőnek, árajánlatot tehet az ingatlanra:
Az Ön neve:
Az Ön e-mail címe:
Üzenet: