Ingatlan Televízió
Ingatlan Televízió
további hirdetések
adatlap bezárása

Balatonföldvár 
 

Hivatkozási szám: 5903236
Ingatlan adatai
Irányár: 57 500 000 Ft
Típus: lakás (tégla)
Kategória: eladó
Alapterület: 49 m2
Fűtés: gáz (konvektor)
Állapota: -
Szobák száma: 2
Építés éve: 1961
Szintek száma: -
Részletes leírás
Balatonföldváron, a Keleti strandtól mindössze 1 km-re, csendes, átmenő forgalomtól mentes utcában kínálunk megvételre egy 2 lakásos családi házban kialakított,
teljesen szeparált lakást, saját udvarrésszel és külön nyári lakrésszel.

Az ingatlan ideális választás állandó lakhatásra, nyaralónak vagy befektetésnek is.

FŐBB ADATOK:
*Lakás: 49 m²
*Nyári lakrész: 26 m²
*Fedett terasz
*Garázs: 20 m²
*Fedett szaletli
*Kerti tároló
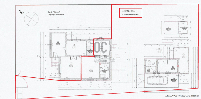
*Telek: 432 m² (leválasztott, kizárólagos használatú)

AZ ÉPÜLET JELLEMZŐI:
*2 lakásos családi ház, társasházzá alapítva
*Teljesen elkülönített udvar, külön kertbejárattal
*A közös fal hangszigeteléssel ellátott
*Kétrétegű műanyag nyílászárók, szúnyoghálóval és redőnnyel
*Födém kőzetgyapot szigeteléssel
*Teljes közműellátottság
*Külön közműórák
*Melegvíz: villanybojler
*Fűtés: gázkonvektor, hűtő-fűtő klíma, elektromos fűtőpanel
*Ügyvéd által ellenjegyzett társasházi alapító okirat, használati megosztással

LAKÁS ELOSZTÁSA:
*2 szoba
*Konyha étkezővel
*Közlekedő
*Fürdőszoba WC-vel

NYÁRI LAKRÉSZ:
*2 szoba
*Fürdőszoba WC-vel
*Fedett terasz + terasz
*A nyári lakrészt korábban nyaraltatásra hasznosították, bejáratott vendégkörrel – kiváló befektetési lehetőség!

GARÁZS
*Egy autó és akár plusz egy motor is kényelmesen elfér

ELHELYEZKEDÉS:
*Keleti strand: 1 km
*Bevásárlóközpont: 600 m
*Vasútállomás: 1,7 km

ÖSSZEGZÉS:
*Saját udvar
*Külön nyári lakrész – extra bevételi lehetőség
*Csendes utca
*Strand közelsége
*Rendezett jogi háttér

Érdeklődj bizalommal, és tekintsd meg ezt a sokoldalúan hasznosítható balatonföldvári ingatlant!

Ez az ingatlan a \\\"Felező csomag\\\" megbízási portfólióhoz tartozik. Részletek az Otthon Centrum weboldalán.
További adatok
Telekterület: -
Kert mérete: -
Erkély mérete: -
Felszereltség: -
Parkolás: -
Kilátás: kertre néző
Egyéb extrák:  
Hirdető adatai
Hirdető neve: Otthon Centrum
Kapcsolattartó: Csizmadia-Schveiger Eszter
Hirdető telefonszáma: +36 70 388 6291
Honlap: -
 
Üzenetet küldhet a hirdetőnek, árajánlatot tehet az ingatlanra:
Az Ön neve:
Az Ön e-mail címe:
Üzenet: