Ingatlan Televízió
Ingatlan Televízió
további hirdetések
adatlap bezárása

Budapest, III.kerület 
Testvérhegy - Farkastorok 

Hivatkozási szám: 5903632
Ingatlan adatai
Irányár: 1 100 000 000 Ft
Típus: ház
Kategória: eladó
Alapterület: 1 150 m2
Fűtés: -
Állapota: új
Szobák száma: 16
Építés éve: -
Szintek száma: -
Részletes leírás
EXKLUZÍV VILLA A TESTVÉRHEGYEN

Ajánljuk: Követségnek, cégközpontnak, magánvillának, többgenerációs
családoknak.

3.kerület, Testvérhegyen, kiváló közlekedésénél, mégis csendes helyen,
igényes házak környezetében, EXKLUZÍV, 2023-ban épült, 3 szintes 1150
m2-es Villa ház, 2400 m2-e telekkel, csodálatos, elvehetetlen
panorámával, hatalmas teraszokkal, szintenként óriási 80-100 m2-es
nappalikkal, 13 szobával, 7 fürdőszobával, 6 autó részére teremgarázs
beállóval, rengeteg felszíni beállóval, 3 db tárolóval, pánikszobával eladó.

Az ingatlan 2023-ban került átalakításra. Egy villaépületből bővítéssel
alakítottak ki 3 db nagyméretű lakást, 6 db fűtött lejáratú gépkocsibeállót
a teremgarázsban, felszíni beállókat és 3db nagyméretű tárolót.

A villa kevés átalakítással 1 lakásos épületként, irodaként is használható.

Az épület teljesen új külsőt kapott, csak a tartószerkezetek maradtak meg.
Teljeskörű átépítés történt, falak, tetőrendszer, szigetelések, vezetékek,
fűtésrendszer, vízvezetékek , burkolatok, nyílászárók újak.

lakások nettó négyzetméter: 1150 m2

Teraszok összesen: 269,37 m2

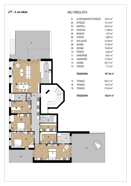
Helyiséglista:

1.emelet
• Nappali-konyha-étkező: 110,8 m2
• szoba: 12,39 m2
• szoba: 17,40 m2
• szoba: 19, 28 m2
• szoba: 11,29 m2
• szoba: 29,17 m2
• szoba: 11,23 m2
• szoba: 10,73 m2
• mosdó: 1,67 m2
• fürdőszoba: 5,66 m2
• fürdőszoba: 7,13 m2
• gardrób: 11,29 m2
• gardrób: 6,81 m2
• fürdőszoba: 6,51 m2
• közlekedő: 19,51 m2
• közlekedő: 14,07 m2
• lépcsőtér: 6,14 m2

Földszint:
• fölszint lépcsőtér: 6,14 m2
• szoba/nappali 37,22
• közlekedő: 15,9 m2
• szoba: 11,23 m2
• szoba: 10,73 m2
• fürdő: 4,9 m2

tetőtér helyiséglista:
• előszoba: 12,73 m2
• szoba: 15,38 m2
• szoba: 18,41 m2
• szoba: 19,67 m2
• garderobe: 18,28 m2
• vendégszoba : 13,1 m2
• mosdó: 1,64 m2
• háztartási helyiség: 4,09 m2
• fürdőszoba: 10,65 m2
• fürdőszoba: 11,01 m2
• nappali-étkező-konyha: 78,75 m2
• közlekedő: 6,66 m2
• közlekedő: 4,2 m2
• kamra: 4,32 m2

Műszaki leírás:
- 36 cm-es tégla falazat
- 15 cm vastagságú grafitos, Drywith hőszigetelés
- 3 rétegű, műanyag Hofstadter, hőszigetelt nyílászárók

Fűtéstechnika:
- Daikin hőszivattyús fűtés
- padlófűtés
- fancoil

Szaniterek:
Ravak

Árnyékolás:
zsalúzia opcionális

Konyhabútor:
- Nobília, német csúcsminőségű konyhabútor
- Bosch gépekkel
- konyhasziget

Extrák:
- Chameleon okosotthon rendszer (mobiltelefonról irányítható)
- dekorfal
- igényes beltéri ajtók
- nagyértékű, vízálló Vynil padlóburkolat

A lakásokhoz tartozik:
• a teremgarázsban 6 db gépkocsibeálló
• felszíni beállók
• 3db tároló: 17 m2

Ár: 1,1 milliárd Ft.
További adatok
Telekterület: 2 400 m2
Kert mérete: 2 400 m2
Erkély mérete: 269 m2
Felszereltség: -
Parkolás: -
Kilátás: -
Egyéb extrák:  
Hirdető adatai
Hirdető neve: Marianna Osztermayer
Kapcsolattartó: Osztermayer Marianna
Hirdető telefonszáma: 06306132050
Honlap: -
 
Üzenetet küldhet a hirdetőnek, árajánlatot tehet az ingatlanra:
Az Ön neve:
Az Ön e-mail címe:
Üzenet: