Ingatlan Televízió
Ingatlan Televízió
további hirdetések
adatlap bezárása

Budapest, III.kerület 
III. kerület, Csillaghegy Duna felöli oldal 

Hivatkozási szám: 5903645
Ingatlan adatai
Irányár: 224 000 000 Ft
Típus: ház
Kategória: eladó
Alapterület: 135 m2
Fűtés: -
Állapota: új
Szobák száma: 5
Építés éve: 2024
Szintek száma: -
Részletes leírás
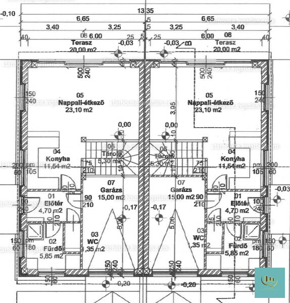
Bp. 3.kerület, Csillaghegyen, kifejezetten csendes utcában, kiváló közlekedésnél, Csillaghegy Duna felőli oldalán ,csendes családi házas övezetben eladó egy nappali-amerikai konyhás, saját, szeparált kerttel rendelkező nappali + 3 szobás ( a garázs átalakítható egy 4. szobává) , igényes kialakítású ikerfél, 20 m2-es terasszal garázzsal.
A kisforgalmú, kertvárosi hangulatú utca infrastruktúrája kiváló. A közelben található a HÉV és a BKK. buszok megállói. A környéken számos bölcsőde, iskola, óvoda ,és bevásárlási lehetőség található.
A Duna part és a Római part közelsége ,számos kikapcsolódási ,és sportolási lehetőséget kínál.

A külön bejárattal rendelkező kert, és épületrészek egymástól szinte teljesen szeparáltak.
A nappalihoz 24m2-es terasz, és külön kertrész kapcsolódik.
A házhoz tartozik garázs, amely igény estén plusz szobává alakítható.
Ezen kívül a ház mellett, több autó részére van beállási lehetősége is.
A ház kívülről a színezésen kívül készen van. Belső munkák folynak jelenleg.
Belső burkolatok, és ajtók még választhatóak, ár- értékhatárig.
A lakás kb. szeptemberben költözhető.

LEÍRÁS:
Nappali +3szoba, igény szerint +1 szoba a garázsból kialakítható
2 fürdőszoba
Parkolás: garázs, kerti beálló.

Saját telekrész:313,5M2.

MŰSZAKI LEÍRÁS:
-30 cm-es falazat 10 cm-es grafitos hőszigeteléssel
-10 cm-es válaszfalak
-fűtés: hőszivattyú padlófűtéssel
-tetőn 3 X10 cm-es kőzetgyapot hőszigetelés
-3 rétegű üvegezésű, antracit szürke nyílászárók
-redőnytokkal elektromos redőny előkészítése
-acél bejárati ajtó
-geberit wc-k
-klíma alapszerelés
-teljes 24 zónás riasztórendszer (nyílászárókon nyitásérzékelőkkel)
-1 X32 Amper áram + H tarifa
-opcionálisan Fancoil fűtésrendszer
-elektromos garázskapu, elektromos kertkapu
-kaputelefon
-lemosható beltéri falfesték fehér alapszínben
-napelem előkészítés
A ház kívülről a színezésen kívül készen van. Belső munkák folynak jelenleg.
Belső burkolatok és ajtók még választhatóak, ár- értékhatárig.
Szeptemberi átadás.

VÁROM MEGTISZTELŐ HÍVÁSÁT, AKÁR HÉTVÉGÉN IS.
További adatok
Telekterület: 313 m2
Kert mérete: 313 m2
Erkély mérete: -
Felszereltség: -
Parkolás: -
Kilátás: -
Egyéb extrák:  
Hirdető adatai
Hirdető neve: Marianna Osztermayer
Kapcsolattartó: Osztermayer Marianna
Hirdető telefonszáma: 06306132050
Honlap: -
 
Üzenetet küldhet a hirdetőnek, árajánlatot tehet az ingatlanra:
Az Ön neve:
Az Ön e-mail címe:
Üzenet: