Ingatlan Televízió
Ingatlan Televízió
további hirdetések
adatlap bezárása

Budapest, XV.kerület 
 

Hivatkozási szám: 5904770
Ingatlan adatai
Irányár: 155 000 000 Ft
Típus: ház
Kategória: eladó
Alapterület: 125 m2
Fűtés: gáz (cirko)
Állapota: új
Szobák száma: 4
Építés éve: 2026
Szintek száma: -
Részletes leírás
Rákospalota kedvelt, kertvárosi részén, újépítésű családi ház, referenciákkal rendelkező építtetőtől eladó
A projekt folyamosan épült, várható kulcsrakész átadás 2026. nyara!
De nézzük a részleteket!
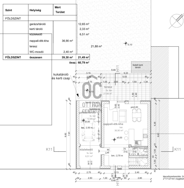
- 341 m2-es telek
- 125 m2 nettó alapterületű, kétszintes ház
- a földszinten nagy, amerikai konyhás nappali, egy mosdó és egy terasz, valamint egy garázs kapott helyett
- az emeleten 3 halószoba, egy fürdőszoba, valamint egy háztartási helyiség kerül kialakításra
- magas műszaki tartalom, antracit cseréptető, gázcirkó, hűtő-fűtő klíma, 3 rétegű műanyag ablakok, 15 cm-es szigetelés
- a belső nyílászárók, falszínek, burkolatok, szaniterek még választhatók!
- az ár tartalmazza a tereprendezést, valamint a fa kerítés elkészítését is
Kiváló lokáció. M3 autópálya pár perc alatt elérhető, Pólus Center, bevásárlási lehetőség 5 perc alatt elérhető. Buszmegálló a sarkon.
Jöjjön, és nézze meg még ma! Kiváló lehetőség!
Igény esetén bankfüggetlen szakemberünk ingyenes tanácsadással, ügyintézéssel áll rendelkezésére.
További adatok
Telekterület: 340 m2
Kert mérete: 340 m2
Erkély mérete: 22 m2
Felszereltség: -
Parkolás: -
Kilátás: -
Egyéb extrák:  
Hirdető adatai
Hirdető neve: Otthon Centrum
Kapcsolattartó: Bringye Viktória
Hirdető telefonszáma: +36 70 716 8186
Honlap: -
 
Üzenetet küldhet a hirdetőnek, árajánlatot tehet az ingatlanra:
Az Ön neve:
Az Ön e-mail címe:
Üzenet: