Ingatlan Televízió
Ingatlan Televízió
további hirdetések
adatlap bezárása

Budapest, XIII.kerület 
Röppentyű utca 

Hivatkozási szám: 5905089
Ingatlan adatai
Irányár: 119 350 000 Ft
Típus: lakás (tégla)
Kategória: eladó
Alapterület: 77 m2
Fűtés: távfűtés
Állapota: felújított
Szobák száma: 3
Építés éve: 2021
Szintek száma: 1
Részletes leírás
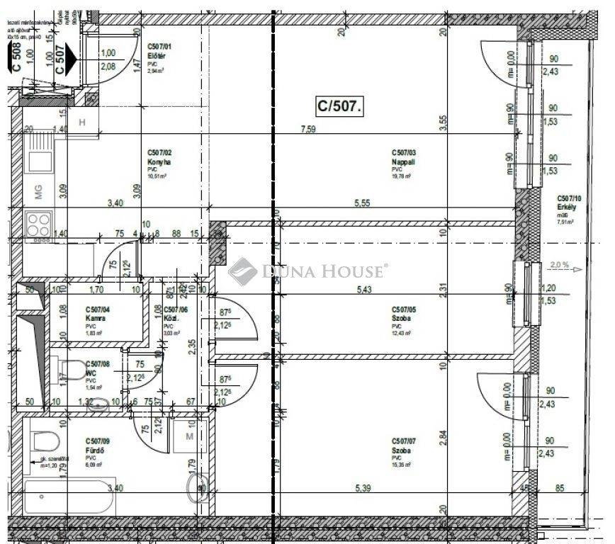
Kiváló lokáció, közkedvelt lakópark, modern, fiatalos lakások!Budapesten, a XIII. kerület Angyalföld városrészén, egy 2021-ben épült, modern, liftes lakóparkban eladó egy 73 nm-es, 5. emeleti lakás 8 nm-es erkéllyel.A lakás amerikai konyhás nappalival, étkezővel és egy 2 hálószobával rendelkezik.A környék kiváló tömegközlekedési lehetőségekkel rendelkezik!A 14-es villamos, helyi autóbusz járatok, illetve akár az M3 metró megállója is csupán perc sétára található, így a belváros is könnyen megközelíthető.A lakáshoz teremgarázsban parkolóhely vásárolható vagy bérelhető.Találja meg nálunk leendő otthonát, aktuális befektetését!
Halász Éva
Telefon:30/4221362
ÚJ ÉPÍTÉSŰ ÉS HASZNÁLT INGATLANOK KÖZVETÍTÉSE!
Igényelje hitelét nálunk! Díjmentes hiteltanácsadás és egyedi (kamat) kedvezmény a Duna House ügyfelei részére, a banki kamatoknál kedvezőbb feltételekkel!
Hívjon bizalommal - a Duna House kínálatában megtalálható valamennyi ingatlannal kapcsolatban örömmel állok rendelkezésére a hét bármely napján!

Referencia szám: LK098055
További adatok
Telekterület: -
Kert mérete: -
Erkély mérete: 8 m2
Felszereltség: -
Parkolás: -
Kilátás: -
Egyéb extrák:  
Hirdető adatai
Hirdető neve: dh.hu - Csillaghegy
Kapcsolattartó: Halász Györgyné
Hirdető telefonszáma: +36304221362
Honlap: -
 
Üzenetet küldhet a hirdetőnek, árajánlatot tehet az ingatlanra:
Az Ön neve:
Az Ön e-mail címe:
Üzenet: