Ingatlan Televízió
Ingatlan Televízió
további hirdetések
adatlap bezárása

Budapest, XV.kerület 
Lencsike utca 

Hivatkozási szám: 5905095
Ingatlan adatai
Irányár: 106 900 000 Ft
Típus: lakás (tégla)
Kategória: eladó
Alapterület: 82 m2
Fűtés: -
Állapota: új
Szobák száma: 4
Építés éve: 2027
Szintek száma: 1
Részletes leírás
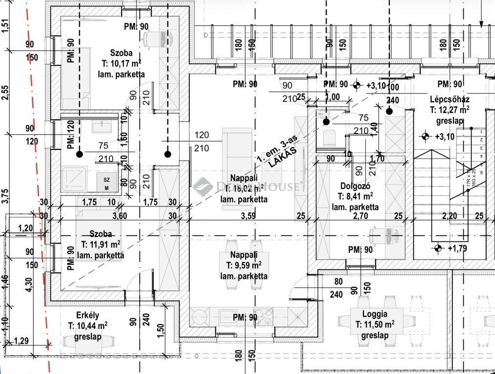
A 15. kerületben, kítűnő közlekedéssel, közel az M3 bevezetőhöz, de mégis csendes, nyugodt, frissen alakított újépítésű részen épül ez a 4 lakásos társasház, két emeleti és két földszinti lakás kialakításával.A földszinti lakásokhoz kertkapcsolat tartozik és az ingatlanon belül kialakított garázs, az emeleti lakásokhoz felszíni beálló kapcsolódik majd. A földszinti lakásokhoz fedett terasz, míg az emeleti lakásokhoz lakásonként egy tágas erkély és egy loggia is kialakításra kerül. A földszinti lakások nappali + 2 szobás kialakításúak, az emeleti lakások pedig nappali + 3 szoba kínálta tágas terekkel várják leendő lakóikat.A tetőtérben 4 tároló lesz kialakítva, melyek darabonként 2,5 MFt-ért lesznek megvásárolhatóak igény esetén.Otthon Start hitellel is megvásárolhatóak a lakások! Az építkezés 2026. márciusában kezdődik el, már most minden engedély rendelkezésre áll.A lakások átadása 2027. szeptemberében várható.Ez a lakás az emeleten helyezkedik el, nappali + 3 hálós, nagy erkély plusz egy loggia kialakítással, opcionálisan megvásárolható felszíni autóbeállóval és a tetőtérben kilakított tárolóval.
Halász Éva
Telefon:30/4221362
ÚJ ÉPÍTÉSŰ ÉS HASZNÁLT INGATLANOK KÖZVETÍTÉSE!
Igényelje hitelét nálunk! Díjmentes hiteltanácsadás és egyedi (kamat) kedvezmény a Duna House ügyfelei részére, a banki kamatoknál kedvezőbb feltételekkel!
Hívjon bizalommal - a Duna House kínálatában megtalálható valamennyi ingatlannal kapcsolatban örömmel állok rendelkezésére a hét bármely napján!

Referencia szám: PR063253/LK/27679
További adatok
Telekterület: -
Kert mérete: -
Erkély mérete: 22 m2
Felszereltség: -
Parkolás: -
Kilátás: -
Egyéb extrák:  
Hirdető adatai
Hirdető neve: dh.hu - Csillaghegy
Kapcsolattartó: Halász Györgyné
Hirdető telefonszáma: +36304221362
Honlap: -
 
Üzenetet küldhet a hirdetőnek, árajánlatot tehet az ingatlanra:
Az Ön neve:
Az Ön e-mail címe:
Üzenet: