Ingatlan Televízió
Ingatlan Televízió
további hirdetések
adatlap bezárása

Budapest, VII.kerület 
 

Hivatkozási szám: 5905133
Ingatlan adatai
Irányár: 81 141 730 Ft
Típus: lakás (tégla)
Kategória: eladó
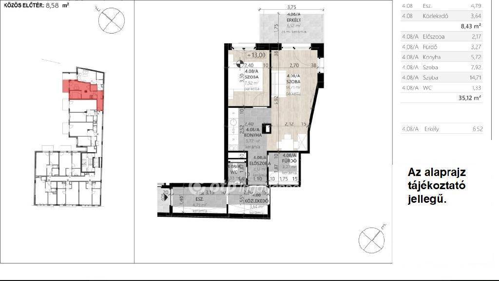
Alapterület: 41 m2
Fűtés: -
Állapota: új
Szobák száma: 2
Építés éve: 2025
Szintek száma: 1
Részletes leírás
ÉRTÉKÁLLÓSÁG, KORSZERŰSÉG, GAZDASÁGOSSÁG, KIVÁLÓ BEFEKTETÉS. Könnyű megközelíthetőséggel, kiváló infrastruktúra mellett a 7. kerületben Erzsébetváros szívében kínálunk újépítésű, kiemelkedő minőségű 2, - 3 szobás, teraszos lakásokat. Hőszivattyúss fűtés/hűtés rendszerű a társasház, itt a rezsiárak emelkedése nem befolyásolja a fűtési díjat.. Ezeket a lakásokat azoknak ajánljuk, akiknek fontos az energiatakarékosság és a környezetkímélő élet. A belvárosi élet kedvelőinek ideális lakhatási lehetőséget kínál, túristáknak remek szálláslehetőség, így értékálló befektetésnek is remek választás. Köszönöm megtisztelő figyelmét. Amennyiben jelenlegi ingatlana értékesítésében is segítségére lehetek, illetve az OTP teljes ingatlankínálatával kapcsolatban kérem forduljon hozzám bizalommal. Az OTP Ingatlanpont, mint egyetlen közvetlen banki hátterű ingatlanközvetítő társaság teljes körű ügyintézéssel áll eladóik és vevőik rendelkezésére! Piaci és kedvezményes hitel- valamint lízingkonstrukciókat kínálunk mint lakásvásárlási hitel, szabad felhasználású hitel, babaváró hitel, CSOK Plusz-intézés, Otthonfelújítási Támogatás, egyéb felújítási hitelek. Az adásvételi szerződés megkötéséhez igény szerint megbízható ügyvédi közreműködést is biztosítunk. Ha felkeltettem érdeklődését, ne habozzon keresni a hét bármely napján reggel 9 és este 9 között. Ügyfeleinknek minden szolgáltatásunk (valóban) díjmentes. WE SPEAK ENGLISH, FEEL FREE TO CALL ME!

81141730 Ft

Referencia szám: M319363
További adatok
Telekterület: -
Kert mérete: -
Erkély mérete: 6 m2
Felszereltség: -
Parkolás: garázs
Kilátás: -
Egyéb extrák:  
Hirdető adatai
Hirdető neve: otpip.hu - Budapest VIII. kerület József körút 72 - OTP Ingatlanpont Iroda
Kapcsolattartó: Sasaran-Kereki Katalin
Hirdető telefonszáma: +36-30-353-3495
Honlap: -
 
Üzenetet küldhet a hirdetőnek, árajánlatot tehet az ingatlanra:
Az Ön neve:
Az Ön e-mail címe:
Üzenet: