Ingatlan Televízió
Ingatlan Televízió
további hirdetések
adatlap bezárása

Mezőkövesd 
 

Hivatkozási szám: 5905144
Ingatlan adatai
Irányár: 27 000 000 Ft
Típus: ház
Kategória: eladó
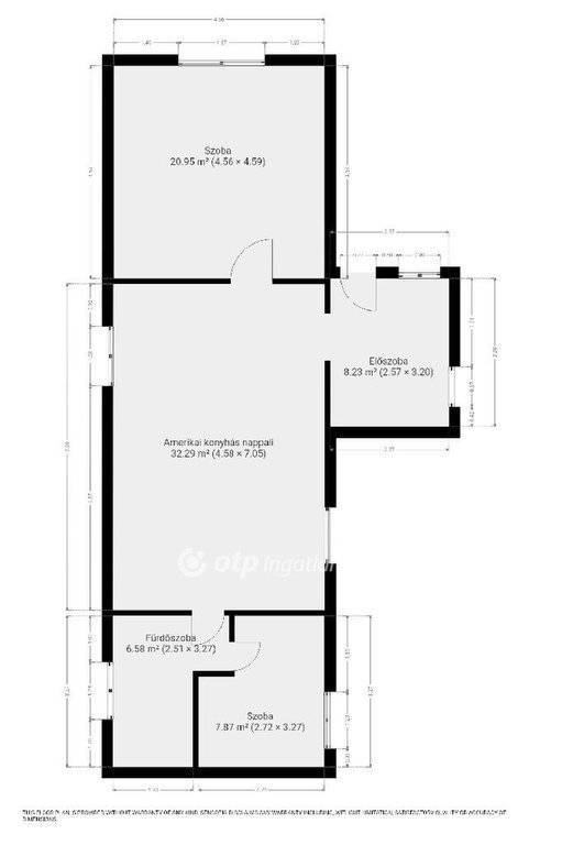
Alapterület: 76 m2
Fűtés: gáz (konvektor)
Állapota: felújított
Szobák száma: 1+1
Építés éve: 1900
Szintek száma: 1
Részletes leírás
Mezőkövesden kínálok megvételre egy 76 négyzetméteres családi házat, amely a méretéhez képest kifejezetten tágas belső terekkel rendelkezik.

Az ingatlan egyik legnagyobb előnye a 32 négyzetméteres, amerikai konyhás nappali, amely világos, jól használható életteret biztosít a mindennapokhoz. A ház egy szobával és egy félszobával rendelkezik, így ideális választás lehet egy kisebb család vagy pár számára.

A villamos és vízhálózat felújításra került, az ingatlan belső falai újravakolásra kerültek, jelenleg már csak a végső színezés van hátra. A nyílászárók műanyag kivitelűek. A burkolás félkész állapotban van, így az új tulajdonos még saját ízlése szerint fejezheti be.

Összességében egy jó állapotú, azonnal költözhető családi házról van szó, amely kisebb befejező munkák után teljes értékű otthonná válik.

OTP Banki hátterünknek köszönhetően finanszírozási igényekben (pl. Otthon Start Program, Babaváró, Falusi CSOK, CSOK Plusz, Lakáshitel, Személyi kölcsön stb.), illetve biztosítások tekintetében is díjmentesen, soron kívüli ügyintézéssel segítem ügyfeleim! Referenciaszám: M321415
További adatok
Telekterület: 322 m2
Kert mérete: -
Erkély mérete: -
Felszereltség: -
Parkolás: -
Kilátás: -
Egyéb extrák:  
Hirdető adatai
Hirdető neve: otpip.hu - Eger Kertész utca 84 - OTP Ingatlanpont Iroda
Kapcsolattartó: Lukácsné Petró Sarolta Márta
Hirdető telefonszáma: +36-70-282-0802
Honlap: -
 
Üzenetet küldhet a hirdetőnek, árajánlatot tehet az ingatlanra:
Az Ön neve:
Az Ön e-mail címe:
Üzenet: