Ingatlan Televízió
Ingatlan Televízió
további hirdetések
adatlap bezárása

Budapest, XIII.kerület 
Röppentyű utca 

Hivatkozási szám: 5905157
Ingatlan adatai
Irányár: 111 600 000 Ft
Típus: lakás (tégla)
Kategória: eladó
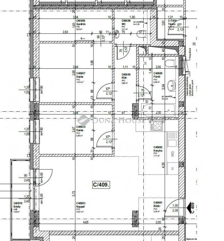
Alapterület: 72 m2
Fűtés: távfűtés
Állapota: felújított
Szobák száma: 3
Építés éve: 2021
Szintek száma: 1
Részletes leírás
Kiváló lokáció, közkedvelt lakópark, modern, fiatalos lakások!
Budapesten, a XIII. kerület Angyalföld városrészén, egy 2021-ben épült, modern, liftes lakóparkban eladó egy 70 nm-es, 4. emeleti lakás 4 nm-es erkéllyel.
A lakás amerikai konyhás nappalival, étkezővel és egy 2 hálószobával rendelkezik.
A környék kiváló tömegközlekedési lehetőségekkel rendelkezik!
A 14-es villamos, helyi autóbusz járatok, illetve akár az M3 metró megállója is csupán perc sétára található, így a belváros is könnyen megközelíthető.
A lakáshoz teremgarázsban parkolóhely vásárolható vagy bérelhető.

Találja meg nálunk leendő otthonát, aktuális befektetését!
Hitellel vásárlás esetén bankfüggetlen és DÍJMENTES hiteltanácsadó közreműködését biztosítjuk, aki a teljes folyamaton végigkíséri Önt.
Az adásvétel biztonságos és gördülékeny bonyolítása érdekében tapasztalt ingatlan szakjogászaink szolgáltatását is ajánlom.

Referencia szám: LK063564
További adatok
Telekterület: -
Kert mérete: -
Erkély mérete: 4 m2
Felszereltség: -
Parkolás: garázs
Kilátás: -
Egyéb extrák:  
Hirdető adatai
Hirdető neve: dh.hu - Kispest
Kapcsolattartó: Takácsné Domján Adrienn
Hirdető telefonszáma: +36703077503
Honlap: -
 
Üzenetet küldhet a hirdetőnek, árajánlatot tehet az ingatlanra:
Az Ön neve:
Az Ön e-mail címe:
Üzenet: