Ingatlan Televízió
Ingatlan Televízió
további hirdetések
adatlap bezárása

Ajka 
Nyíres utca 

Hivatkozási szám: 5905748
Ingatlan adatai
Irányár: 49 000 000 Ft
Típus: lakás (tégla)
Kategória: eladó
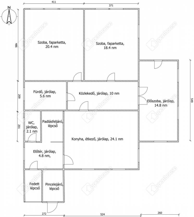
Alapterület: 104 m2
Fűtés: egyéb
Állapota: felújítást igényel
Szobák száma: 2
Építés éve: -
Szintek száma: 1
Részletes leírás
Az Openhouse Pápa Ingatlaniroda kínálatában eladó a #178760 hivatkozási számú ajkai családi ház.

Eladó Ajka egyik csendes utcájában lévő felújítandó családi ház!


A családi ház 104 nm-es lakóterülettel rendelkezik és egy 1086 nm-es rendezett és karbantartott telken helyezkedik el.


A ház téglából épült, pala fedéssel.


Az otthon melegét gázkonvektorok, valamint a konyha-étkezőben és az egyik szobában cserépkályhák biztosítják.


Az ingatlanban található egy tágas, világos közlekedő, innen nyílik 2 hálószoba, a fűrdö zuhanyzóval és WC-vel, és egy tágas konyha.


Szobákban faparketta burkolat, a többi helyiségben járólap található.


A ház belül felújítandó állapotban van, így saját ízlése szerint újíthatja fel leendő otthonát.


Az ingatlan alatt található 20 nm-es pince, ami kiválóan alkalmas tárolási célokra..


Az udvarban külön épületben tágas garázs biztosítja a parkolási lehetőséget. A garázs mellett egy tároló is rendelkezésre áll.


Az udvar és a kert gyümölcsfákkal és dísznövényekkel tarkított.


Önnek ajánlom, ha szeretne családi házban élni és megfizethető áron szeretne ingatlant vásárolni. Kis ráfordítással barátságos otthon válhat belőle.




Ha felkeltette érdeklődését ez az eladó ajkai családi ház, vagy bármely más családi ház és bővebb információt szeretne, keressen bizalommal.Hivatkozási szám: #178760

Az Openhouse Pápa Ingatlaniroda tagjaként várom Önt az országos hálózatunk teljes kínálatával.

A családi ház vásárláshoz hitelt igényelne? Ingyenes hitelközvetítéssel segít Önnek bankfüggetlen hitelszakértőnk.

További szolgáltatásainkkal (pl. értékbecslés, energetikai tanúsítvány, jogi háttér) is segítjük Önt a vásárlásban.
Az otthon érték. Az ingatlan üzlet.
További adatok
Telekterület: 1 086 m2
Kert mérete: -
Erkély mérete: -
Felszereltség: -
Parkolás: garázs
Kilátás: -
Egyéb extrák:  
Hirdető adatai
Hirdető neve: oh.hu - Openhouse Pápa Ingatlaniroda
Kapcsolattartó: Barcza Anna
Hirdető telefonszáma: +36301794296
Honlap: -
 
Üzenetet küldhet a hirdetőnek, árajánlatot tehet az ingatlanra:
Az Ön neve:
Az Ön e-mail címe:
Üzenet: