Ingatlan Televízió
Ingatlan Televízió
további hirdetések
adatlap bezárása

Pusztaszabolcs 
 

Hivatkozási szám: 5906078
Ingatlan adatai
Irányár: 61 900 000 Ft
Típus: lakás (tégla)
Kategória: eladó
Alapterület: 113 m2
Fűtés: gáz (cirko)
Állapota: felújított
Szobák száma: 3
Építés éve: 1980
Szintek száma: 1
Részletes leírás
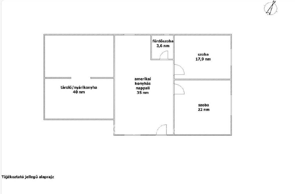
Fejér megye, Pusztaszabolcs 113 nm-es családi ház eladó. A felújított, tégla falazatú lakóingatlan a település központjához közel egy 550 nm-es telken helyezkedik el. A tehermentes családi házban amerikai konyhás nappali, két tágas hálószoba és fürdőszoba található, valamint az ingatlanhoz tartozik egy hozzáépített 40 nm-es tároló(fele beszámítva a hasznos alapterületbe), mely több szoba kialakítására alkalmas, alatta pedig egy 30 nm-es pince található. A belső felújítás során cserélték a víz-és villanyvezetékeket, az összes nyílászárót műanyagra, az összes burkolatot, teljes aljzatcsere és aljzatszigetelés, mennyezetszigetelés, új gépesített konyhabútor. A meghirdetett ár tartalmazza a külső szigetelést is. A fűtésről új kombi gázkazán és új hűtő fűtő klíma gondoskodik. Séta távolságra a vasútállomás, boltok, gyógyszertár, orvosi rendelő, óvoda, iskola, játszótér, polgármesteri hivatal. Teljes körű ügyintézésben segítjük ügyfeleinket díjtalanul: CSOK igénylése, kedvezményes hitel mobil bankári szolgáltatással, adásvétel teljes lebonyolításával.
További adatok
Telekterület: 550 m2
Kert mérete: -
Erkély mérete: -
Felszereltség: -
Parkolás: lakáshoz van kültéri parkoló
Kilátás: -
Egyéb extrák:  
Hirdető adatai
Hirdető neve: otpip.hu - Székesfehérvár Palotai út 8 - OTP Ingatlanpont Iroda
Kapcsolattartó: Darnai Henrietta
Hirdető telefonszáma: +36-20-487-4399
Honlap: -
 
Üzenetet küldhet a hirdetőnek, árajánlatot tehet az ingatlanra:
Az Ön neve:
Az Ön e-mail címe:
Üzenet: