Ingatlan Televízió
Ingatlan Televízió
további hirdetések
adatlap bezárása

Budapest, VII.kerület 
 

Hivatkozási szám: 5906120
Ingatlan adatai
Irányár: 104 900 000 Ft
Típus: lakás (tégla)
Kategória: eladó
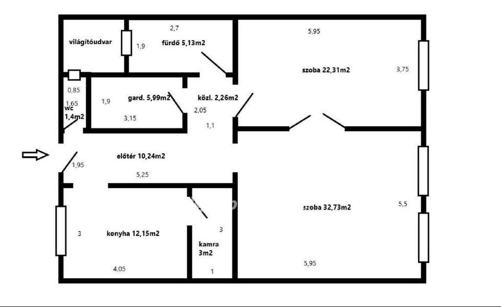
Alapterület: 95 m2
Fűtés: gáz (konvektor)
Állapota: felújítást igényel
Szobák száma: 2
Építés éve: 1896
Szintek száma: 1
Részletes leírás
Budapest VII. kerületében, Ligetvárosban 95 m2-es lakás ELADÓ!

A VII. kerület közkedvelt részen, a Damjanich utcában kínálunk eladásra egy magasföldszinti, 95 m2-es lakást.

Az ingatlan egy téglaépítésű, liftes társasház magasföldszintjén helyezkedik el, a ház kívül-belül rendkívül jó állapotú, rendszeresen karbantartott, jó lakóközösséggel és közös képviselettel rendelkezik.
A lakás jelenleg 2 szobás, azonban könnyen 3 szobássá alakítható, ezzel is növelve az életteret. Minden helysége tágas, külön nyíló.
Állapotát tekintve felújításra szorul, új tulajdonosa saját ízlése szerint alakíthatja.
Utcai nézetének és K-i tájolásának köszönhetően kimondottan világos.

Mind saját, mind befektetési céllal jó választás lehet, hiszen a környék kimondottan jó infrastruktúrával rendelkezik. Az utcában több bevásárlási lehetőség, étterem is található.

Pár perc séta távolságon belül több tömeg közlekedni eszköz is elérhető, buszmegálló, troli.
A Városliget is csupán 10 perc sétára található.

Tehermentes, 1/1-es tulajdonjogú.
Rugalmasan megtekinthető.

Kérdés esetén forduljon hozzám bizalommal, a hét bármely napján!

104900000 Ft

Referencia szám: M320126
További adatok
Telekterület: -
Kert mérete: -
Erkély mérete: -
Felszereltség: -
Parkolás: -
Kilátás: -
Egyéb extrák:  
Hirdető adatai
Hirdető neve: otpip.hu - Budapest VIII. kerület József körút 72 - OTP Ingatlanpont Iroda
Kapcsolattartó: Sasaran-Kereki Katalin
Hirdető telefonszáma: +36-30-353-3495
Honlap: -
 
Üzenetet küldhet a hirdetőnek, árajánlatot tehet az ingatlanra:
Az Ön neve:
Az Ön e-mail címe:
Üzenet: