Ingatlan Televízió
Ingatlan Televízió
további hirdetések
adatlap bezárása

Budapest, X.kerület 
 

Hivatkozási szám: 5906136
Ingatlan adatai
Irányár: 64 890 000 Ft
Típus: lakás (panel)
Kategória: eladó
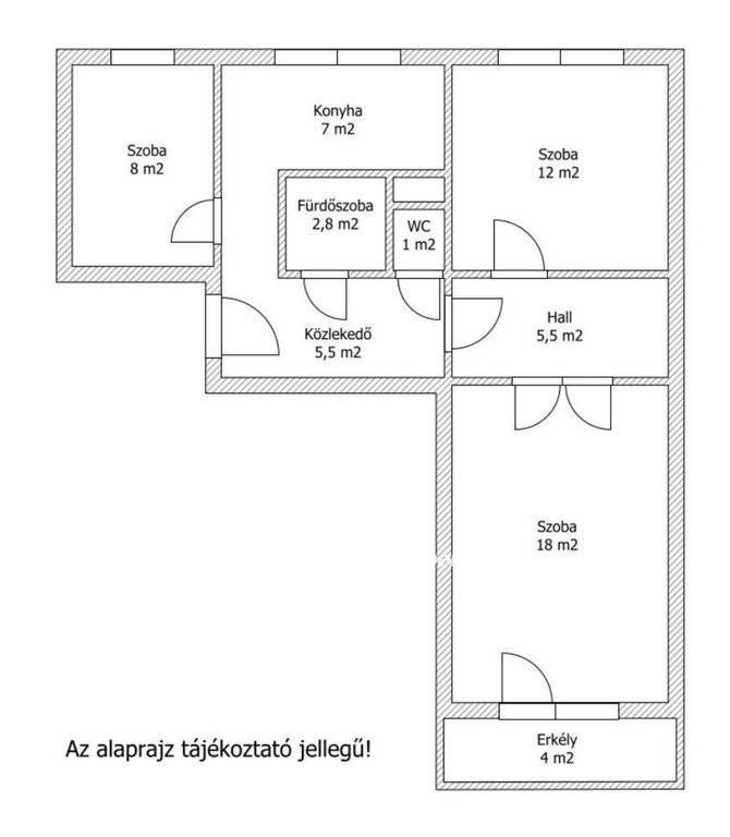
Alapterület: 60 m2
Fűtés: távfűtés
Állapota: felújított
Szobák száma: 3
Építés éve: 1978
Szintek száma: 1
Részletes leírás
X. kerületben, Óhegy kedvelt részén, a Lavotta utcában kínálok megvételre egy 10 emeletes panelház 6. emeletén található, 60 nm-es, 3 szobás lakást.
A hirdetésben szereplő képek frissek, és a lakás jelenlegi állapotát mutatják. Fekvésének és emeleti elhelyezkedésének köszönhetően világos, jó benapozottságú. Elrendezése praktikus, külön nyíló szobákkal, konyhával, fürdőszobával és külön mellékhelyiséggel, ami kényelmes mindennapokat biztosít.

Az épület panel szerkezetű, a fűtést és a meleg vizet távhő biztosítja. A ház kaputelefonos és lifttel felszerelt.
A társasház rendezett, a lépcsőház tiszta, a lakóközösség nyugodt.
A környék infrastruktúrája kiváló, a közelben Spar, Penny és Lidl üzletek, iskola, óvoda, orvosi rendelő, posta és számos egyéb szolgáltatás található, mind könnyen, gyalogosan elérhető távolságban. A Family Center és a Köki Terminál gyorsan megközelíthető, ahol további vásárlási és szórakozási lehetőségek állnak rendelkezésre.
A közlekedés rendkívül jó, a 68, 85 és 185 jelzésű buszokkal könnyen elérhető az Örs vezér tere vagy Kőbánya-Kispest, ahonnan metróval gyorsan a belvárosba juthatunk. Az autóval közlekedők számára a parkolás ingyenes.
A lakás tehermentes, hitelre is megvásárolható.
Ajánlom mindazoknak, akik jó elosztású, 3 szobás lakást keresnek, kiváló elhelyezkedésű környéken.

64890000 Ft

Referencia szám: M320132
További adatok
Telekterület: -
Kert mérete: -
Erkély mérete: 4 m2
Felszereltség: -
Parkolás: -
Kilátás: -
Egyéb extrák:  
Hirdető adatai
Hirdető neve: otpip.hu - Budapest VIII. kerület József körút 72 - OTP Ingatlanpont Iroda
Kapcsolattartó: Sasaran-Kereki Katalin
Hirdető telefonszáma: +36-30-353-3495
Honlap: -
 
Üzenetet küldhet a hirdetőnek, árajánlatot tehet az ingatlanra:
Az Ön neve:
Az Ön e-mail címe:
Üzenet: