Ingatlan Televízió
Ingatlan Televízió
további hirdetések
adatlap bezárása

Gerjen 
 

Hivatkozási szám: 5906282
Ingatlan adatai
Irányár: 75 000 000 Ft
Típus: lakás (tégla)
Kategória: eladó
Alapterület: 347 m2
Fűtés: gáz (cirko)
Állapota: felújított
Szobák száma: -
Építés éve: -
Szintek száma: -
Részletes leírás
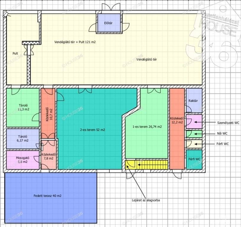
Tökéletes befektetés azok számára, akik a fejlődő Gerjenben szeretnének üzletet nyitni! Ez a 347 m2-es 2 szintes ( földszint, alagsor) ingatlan 560 m2-es telken helyezkedik el a falu központjában.
Főbb jellemzők:
- Kiemelt elhelyezkedés a paksi beruházások és a Kalocsa-Gerjen híd miatt
- 121 m2-es vendéglátó tér és további, külön megközelíthető privát termek (27 m2 és 52 m2)
- További helyiségek: raktár, konyha, személyzeti és vendég WC-k, mosogató
- 75 m2-es alagsor kazánházzal és raktárhelyiségekkel
- Fűtése vegyes tüzelésű kazánról és gázkazánról, melegvíz ellátása gázbojlerrel
- 2 db hűtő-fűtő klíma (2022-ben beszerelve)
- Nyílászárói műanyagszerkezet, hőszigetelő üvegezéssel
- Teljes felszereléssel együtt megvásárolható (hűtőkamra, hűtőpult, stb.)
- Mobilgarázs az udvaron, benne a vételárban!
Ne hagyja ki ezt a fantasztikus lehetőséget!
Az ingatlan ideális vendéglátó egység, rendezvényközpont vagy más üzleti célra.

A HOUSE36kínálatában található összes ingatlannal kapcsolatban tudok felvilágosítást nyújtani!
Amennyiben eladó-kiadó ingatlana van, vagy finanszírozási megoldást keres, hívjon! Megtaláljuk a legjobb lehetőséget Önnek! Hitelspecialistánk mindenben segít.Irodánkban ez a szolgáltatás INGYENES.

Figyelem! Az adatlap a megbízónktól kapott adatok alapján készült. Pontosságáért felelősséget nem tudunk vállalni!
Az iroda legfrissebb, aktuális kínálatát a HOUSE36 saját weboldalán találja!
További adatok
Telekterület: -
Kert mérete: -
Erkély mérete: -
Felszereltség: -
Parkolás: -
Kilátás: -
Egyéb extrák:  
Hirdető adatai
Hirdető neve: h36.hu - HOUSE36 Ingatlanhálózat
Kapcsolattartó: Bézsenyi Tamás
Hirdető telefonszáma: +36701991265
Honlap: -
 
Üzenetet küldhet a hirdetőnek, árajánlatot tehet az ingatlanra:
Az Ön neve:
Az Ön e-mail címe:
Üzenet: