Ingatlan Televízió
Ingatlan Televízió
további hirdetések
adatlap bezárása

Tiszakécske 
 

Hivatkozási szám: 5906354
Ingatlan adatai
Irányár: 135 000 000 Ft
Típus: kereskedelmi/ipari ingatlan
Kategória: eladó
Alapterület: 960 m2
Fűtés: gáz (cirko)
Állapota: felújítást igényel
Szobák száma: -
Építés éve: -
Szintek száma: -
Részletes leírás
Tiszakécskén, közvetlenül a főút mellett a tiszakécskei gyógy-és termál fürdő és a Tisza parti üdülőövezet közelében, eladó egy több épületből álló ingatlan.


A most megépülő M44 autópályán könnyen elérhető az ország bármely pontja.

Az épület alkalmas szálloda, panzió, nyugdíjas otthon, munkás szálló kialakítására is.
A XX.század elején épült alápincézett kastély épületben 8 szoba és fürdők.
A 80-as években épült L alakú épületben amelynek egyik szárnya emeletes 13 szoba található mindegyikben fürdőszobával.
Melléképület raktárakkal.
A telken található még egy 150 m2 alapterületű hűtőház.

- összközműves
- teljesen bekerített 8599 m2 telek
- buszmegálló a kapuban
- főút mellett
- kúria épület 210.74 m2
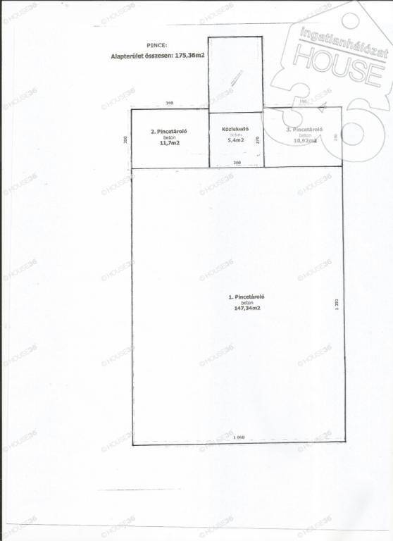
- Pince a főépület alatt 175.36 m2
- L alakú épület földszint 349,51 m2
- L alakú épület emelet 228.3 m2
- Tároló hűtő 150.67 m2
- melléképület 84.48 m2

Az épületekben további szobák kialakítására is van lehetőség.
Rendezett parkosított terület .
Mivel a 90-es évek vége óta az ingatlan nincs hasznosítva ezért felújítást igényel.

Az ingatlan akár hét végén is megtekinthető.Hívjon.Nézzük meg.

Figyelem az adatlap megbízónktól kapott adatok alapján készült pontosságáért felelősséget vállalni nem tudunk.
Az iroda legfrissebb, aktuális kínálatát a HOUSE36 saját weboldalán találja!
További adatok
Telekterület: -
Kert mérete: -
Erkély mérete: -
Felszereltség: -
Parkolás: -
Kilátás: -
Egyéb extrák:  
Hirdető adatai
Hirdető neve: h36.hu - HOUSE36 Ingatlanhálózat
Kapcsolattartó: Kocsis Zsuzsanna
Hirdető telefonszáma: +36707959014
Honlap: -
 
Üzenetet küldhet a hirdetőnek, árajánlatot tehet az ingatlanra:
Az Ön neve:
Az Ön e-mail címe:
Üzenet: