Ingatlan Televízió
Ingatlan Televízió
további hirdetések
adatlap bezárása

Lajosmizse 
 

Hivatkozási szám: 5906378
Ingatlan adatai
Irányár: 54 900 000 Ft
Típus: ház
Kategória: eladó
Alapterület: 95 m2
Fűtés: gáz (héra)
Állapota: felújított
Szobák száma: 4
Építés éve: 1994
Szintek száma: 1
Részletes leírás
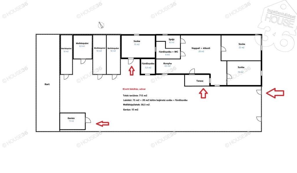
Azonnal költözhető, felújított 76 m2-es ház, külön 20 m2-s lakrésszel Lajosmizse frekventált részén eladó!

Lajosmizse frekventált részén eladó egy 715 m2-es telken fekvő, 76 m2-es családi ház, hozzá tartozó külön bejáratú 20 m2-es lakható melléképülettel és egy 15 m2 teljesen felújított garázzsal.
Ez a ház ideális fiatal pároknak a közös élet kialakításához, vagy akár egy idősebb házaspár részére is.

Miért kivételes ez az ingatlan?


-Külön bejáratú melléképület saját szobával és fürdővel – tökéletes vendégszobának, dolgozószobának vagy akár egy nagyobb gyerek önálló terének.
-Teljes körű felújítás az elmúlt években: minőségi laminált parketta a szobákban, igényes hidegburkolat a közösségi terekben, kívül-belül esztétikus kialakítás.
-Új tető, friss nemesvakolat, talajvíz elleni szigeteléssel ellátott vegyes falazat.
-Többfajta fűtési lehetőség: gázkonvektor, kályha, hűtő-fűtő klíma
-Melléképületek és ólak a praktikus tároláshoz: szerszámok, biciklik, kerti eszközök ideális helye.
-A fa nyílászárók megőrizték eredeti karakterüket, jó állapotban vannak, az ablakokon redőny található.
-A bútorok a megegyezés tárgyát képezhetik.
-Kiváló elhelyezkedés: boltok, pékség, patika, drogéria pár perc alatt elérhető.

A ház elrendezése:
Konyha ; előtér + nappali + étkező, 2 nagy szoba ; fürdő + WC, spájz

A melléképületben: szoba + fürdőszoba, kályhás fűtéssel

Ez az otthon tényleg ritka lehetőség ; élhető méret, külön lakrész, kiváló állapot, rendezhető kert és kiemelt lokáció egyben.
Ha megnézi biztosan elnyeri tetszését!
Figyelem az adatlap megbízónktól kapott adatok alapján készült, pontosságáért felelősséget nem tudunk vállalni!
Az iroda legfrissebb, aktuális kínálatát a HOUSE36 saját weboldalán találja!
További adatok
Telekterület: 715 m2
Kert mérete: -
Erkély mérete: -
Felszereltség: -
Parkolás: -
Kilátás: -
Egyéb extrák:  
Hirdető adatai
Hirdető neve: h36.hu - HOUSE36 Ingatlanhálózat
Kapcsolattartó: Alt Róbertné
Hirdető telefonszáma: +36706330680
Honlap: -
 
Üzenetet küldhet a hirdetőnek, árajánlatot tehet az ingatlanra:
Az Ön neve:
Az Ön e-mail címe:
Üzenet: