Ingatlan Televízió
Ingatlan Televízió
további hirdetések
adatlap bezárása

Debrecen 
 

Hivatkozási szám: 5907857
Ingatlan adatai
Irányár: 169 000 000 Ft
Típus: ház
Kategória: eladó
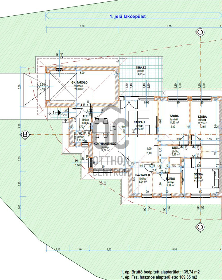
Alapterület: 110 m2
Fűtés: -
Állapota: új
Szobák száma: 4
Építés éve: 2026
Szintek száma: -
Részletes leírás
A HUSZTI LAKÓPARKBAN ÉLNI: EGY ÉLETÉRZÉS

Debrecenben a Huszti lakóparkban új építésű, modern, földszintes ikerház épül,
magas műszaki tartalommal.

Az épület főbb jellemzői:
- falazata 38 cm-es YTONG
- válaszfalak 10 cm-es válaszfal YTONG-ból falazva
- zárófödémen 30 cm-es URSA kőzetgyapot szigetelés
- homlokzati nyílászárók háromrétegű üvegezéssel, hatkamrás műanyag szerkezettel,
redőnnyel szerelve
- riasztó, térfigyelő rendszer és kaputelefon előkészítés
- burkolatválasztás műszaki leírás szerint
- hőszivattyúról üzemelő padlófűtés
- hőszivattyúról üzemelő mennyezethűtés
- 1 MFt értékben beépített konyha
- gk. bejáró és bejárat térkövel burkolva
- Várható átadás 2026. 08. 31.

Az ingatlan 30% befizetéssel leköthető.
Hitel, támogatott hitel igénybe vehető!
További adatok
Telekterület: 568 m2
Kert mérete: 568 m2
Erkély mérete: 15 m2
Felszereltség: -
Parkolás: -
Kilátás: -
Egyéb extrák:  
Hirdető adatai
Hirdető neve: Otthon Centrum
Kapcsolattartó: Koroknainé Erzsébet
Hirdető telefonszáma: +36 70 461 9356
Honlap: -
 
Üzenetet küldhet a hirdetőnek, árajánlatot tehet az ingatlanra:
Az Ön neve:
Az Ön e-mail címe:
Üzenet: