Ingatlan Televízió
Ingatlan Televízió
további hirdetések
adatlap bezárása

Székesfehérvár 
 

Hivatkozási szám: 5908311
Ingatlan adatai
Irányár: 39 900 000 Ft
Típus: lakás (panel)
Kategória: eladó
Alapterület: 47 m2
Fűtés: távfűtés
Állapota: felújított
Szobák száma: 2
Építés éve: 1980
Szintek száma: 1
Részletes leírás
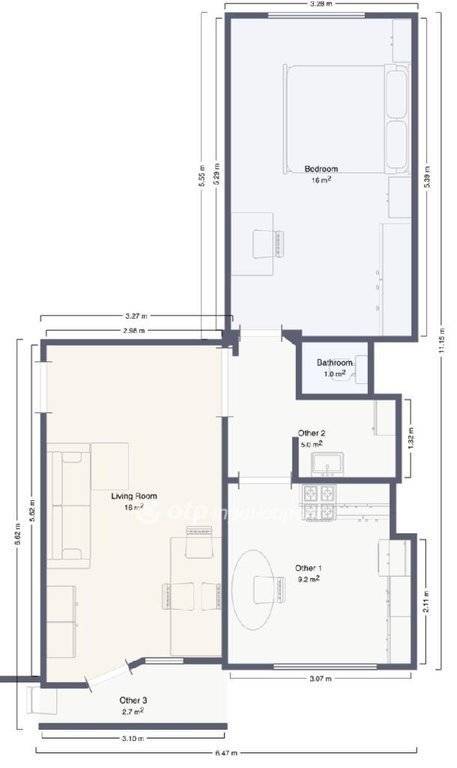
Székesfehérvár-Maroshegy városrészben eladó egy 47 nm alapterületű, panelprogramos társasházi lakás. Az ingatlan jó állapotú és azonnal költözhető.Négyemeletes társasház legfelső, 4. emeletén helyezkedik el. 1980-ban épült, csúsztatott zsalus szerkezetű lifttel nem rendelkező társasházban található. Az épület külső és belső állapota egyaránt jó, a lépcsőház zárt, a környezet rendezett, a közelben játszótér is rendelkezésre áll. Parkolás közterületen, ingyenesen megoldott.

A lakás 2,7 méteres belmagasságú, elosztása praktikus: egy 16 nm-es nappali, egy 16 nm-es szoba, egy 9 nm-es konyha, egy 5 nm-es fürdőszoba és egy külön WC található benne. A nappali déli tájolású, ennek köszönhetően az ingatlan kifejezetten napfényes.

A fűtés távfűtéssel, egyedi mérővel történik, a hőleadás radiátorokon keresztül megoldott. Az ingatlan elhelyezkedése alapján tökéletes választás lehet saját célra vagy befektetésnek is.

Ügyfeleink részére díjmentesen bíztosítunk előzetes hitelbírálatot, piaci hitelek esetén egyedi kamatot, valamint teljeskörű ügyintézést a birtokbaadásig.
További kérdések esetén várom hívását, akár hétvégén is!

39900000 Ft
Érd.: Lepsényi Kornél +3670/8840188

Referencia szám: M321222
További adatok
Telekterület: -
Kert mérete: -
Erkély mérete: -
Felszereltség: -
Parkolás: -
Kilátás: -
Egyéb extrák:  
Hirdető adatai
Hirdető neve: otpip.hu - Gárdony Bóné Kálmán utca 12 - OTP Ingatlanpont Iroda
Kapcsolattartó: Lepsényi Kornél
Hirdető telefonszáma: +36708840188
Honlap: -
 
Üzenetet küldhet a hirdetőnek, árajánlatot tehet az ingatlanra:
Az Ön neve:
Az Ön e-mail címe:
Üzenet: