Ingatlan Televízió
Ingatlan Televízió
további hirdetések
adatlap bezárása

Budapest, VII.kerület 
Szinva utca 

Hivatkozási szám: 5908463
Ingatlan adatai
Irányár: 43 800 000 Ft
Típus: lakás (tégla)
Kategória: eladó
Alapterület: 37 m2
Fűtés: elektromos
Állapota: felújított
Szobák száma: 2
Építés éve: 1900
Szintek száma: 1
Részletes leírás
MINIGARZON ELADÓ!

7. kerületben, Szinva utcában, rendezett társasház magasföldszintjén,
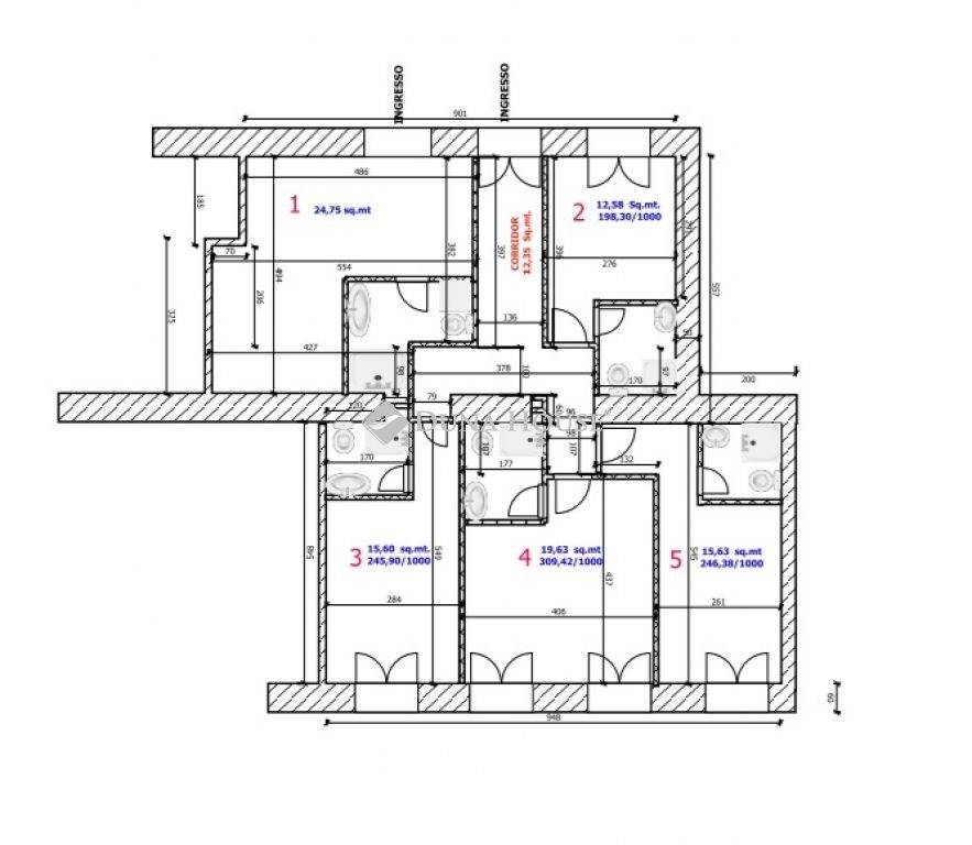
89 nm alapterület + 46 nm ingatlan, 5 lakóegységre osztott egyik lakását kínáljuk eladásra.

A felújítás még zajlik, de már rugalmasan megtekinthetőek.
2026 márciusában költözhetőek.
Minden lakás konyhával, nappalival, fürdőszobával és galériás hálószobával rendelkezik. 4.2 m. belmagasságával kényelmes otthont biztosít.
Észak keleti fekvésű, külön villany és vízórával felszereltek.
Az ár tartalmazza a beépített bútorokat.

A lakások külön, ügyvédi megosztással megvásárolhatóak, de az 5 minigarzon egyben is eladó.

1. lakás: 24,7 nm + 13,1 nm galéria

További információkért, megtekintésre, hívjon bizalommal!
A Duna House teljes kínálatával kapcsolatban segítségére tudok lenni.
Amennyiben telefonon nem ér el, kérem küldjön érdeklődő üzenetet.
Szükség esetén román nyelven is tudok segíteni

Referencia szám: LK013386
További adatok
Telekterület: -
Kert mérete: -
Erkély mérete: -
Felszereltség: -
Parkolás: utcán, közterületen
Kilátás: -
Egyéb extrák:  
Hirdető adatai
Hirdető neve: dh.hu - Kispest
Kapcsolattartó: Balázs István Jácint
Hirdető telefonszáma: +36702349886
Honlap: -
 
Üzenetet küldhet a hirdetőnek, árajánlatot tehet az ingatlanra:
Az Ön neve:
Az Ön e-mail címe:
Üzenet: