Ingatlan Televízió
Ingatlan Televízió
további hirdetések
adatlap bezárása

Budapest, XIII.kerület 
Röppentyű utca 

Hivatkozási szám: 5908478
Ingatlan adatai
Irányár: 109 275 000 Ft
Típus: lakás (tégla)
Kategória: eladó
Alapterület: 71 m2
Fűtés: távfűtés
Állapota: felújított
Szobák száma: 3
Építés éve: 2021
Szintek száma: 1
Részletes leírás
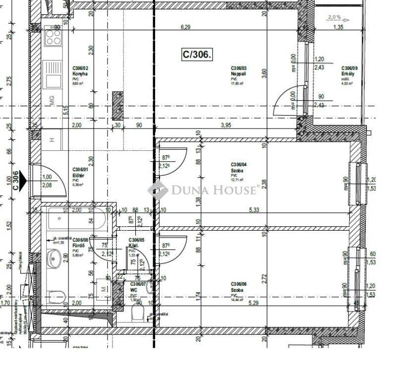
Kiváló lokáció, közkedvelt lakópark, modern, fiatalos lakások!Budapesten, a XIII. kerület Angyalföld városrészén, egy 2021-ben épült, modern, liftes lakóparkban eladó egy 68 nm-es, 3. emeleti lakás 5 nm-es erkéllyel.A lakás amerikai konyhás nappalival, étkezővel és két hálószobával rendelkezik.A környék kiváló tömegközlekedési lehetőségekkel rendelkezik!A 14-es villamos, helyi autóbusz járatok, illetve akár az M3 metró megállója is csupán perc sétára található, így a belváros is könnyen megközelíthető.A lakáshoz teremgarázsban parkolóhely vásárolható vagy bérelhető.Találja meg nálunk leendő otthonát, aktuális befektetését!

109275000 Ft

Referencia szám: LK033270
További adatok
Telekterület: -
Kert mérete: -
Erkély mérete: 5 m2
Felszereltség: -
Parkolás: -
Kilátás: -
Egyéb extrák:  
Hirdető adatai
Hirdető neve: dh.hu - Kispest
Kapcsolattartó: Sárvári-Darai Renáta
Hirdető telefonszáma: +36301778474
Honlap: -
 
Üzenetet küldhet a hirdetőnek, árajánlatot tehet az ingatlanra:
Az Ön neve:
Az Ön e-mail címe:
Üzenet: