Ingatlan Televízió
Ingatlan Televízió
további hirdetések
adatlap bezárása

Nyíregyháza 
 

Hivatkozási szám: 5908571
Ingatlan adatai
Irányár: 92 900 000 Ft
Típus: lakás (tégla)
Kategória: eladó
Alapterület: 98 m2
Fűtés: -
Állapota: új
Szobák száma: 4
Építés éve: 2026
Szintek száma: 1
Részletes leírás
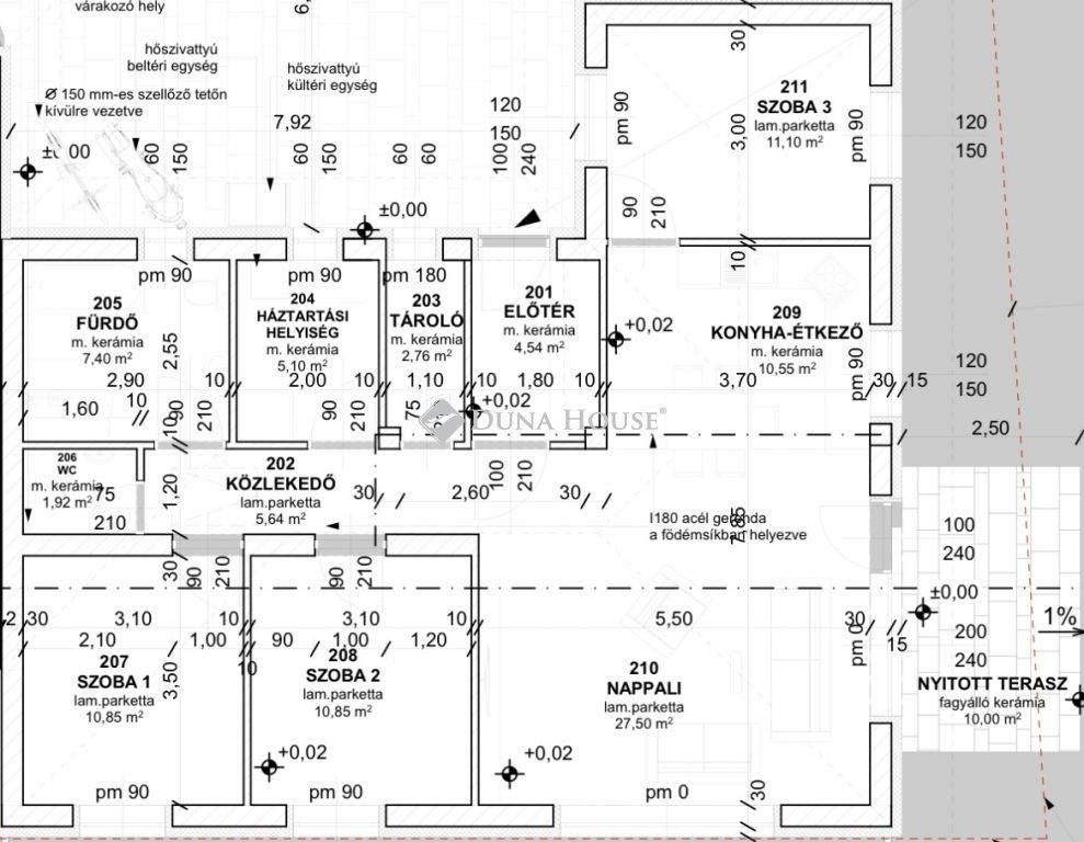
Nyíregyháza Orosi út közelében, Lakóparki környezetben, igényes, szép családi házak szomszédságában, komoly referenciával rendelkező kivitelezőtől eladó egy 450 m² -es telekre épülő, 98,21 m² -es, nappali - amerikai konyha + 3 szobás új építésű IKERHÁZ.Az ingatlan főbb jellemzői:- Lakótér 95,45 m² + nyitott terasz 10 m²- nappali-konyha-étkező, 3 hálószoba, fürdőszoba, WC, mosókonyha, közlekedő, előtér, garázs- Külső főfalak: Porotherm 30-as téglafal, a külső falak 15 cm-es grafitos hőszigeteléssel- Belső főfalak: Porotherm 30-as téglafal- Födém: a földszint feletti födém 15/15 cm-es fagerendákból épül. A födém 30 cm üveggyapot hőszigetelést kap.- Nyílászárók: kívül fehér színű műanyag szerkezetű ajtók és ablakok kerülnek beépítésre.- Burkolatok: a helyiségek padlóburkolata kerámia és laminált parketta.- Fűtése: hőszivattyús, padlófűtéssel- A lakáshoz közvetlenül kapcsolódó nyitott teraszon beton térkő burkolat lett tervezve- Korszerű hőszivattyús fűtésrendszer, minden helyiségben padlófűtéssel szerelve- Hőszigetelések: a földszinti padlóban 15 cm lépésálló Nikecell, illetve a garázsban 12 cm grafitos hőszigetelés, a földszint feletti födémben 30 cm hőszigetelés, a külső falakon 15 cm vtg. hőszigetelés lett tervezve.- A külső térrel érintkező áthidalások és koszorúk 5+15 cm-es hőszigetelést kapnak.Amennyiben hirdetésem felkeltette az érdeklődését, kérem keressen bizalommal elérhetőségeim egyikén!Vevőink részére minden szolgáltatásunk díjmentes!Irodánkban szintén díjmentes hitel-, CSOK PLUSZ, Babaváró, Biztosítások ügyintézése!

Irányár 92900000 Ft

Referencia szám: HZ043266
További adatok
Telekterület: 450 m2
Kert mérete: -
Erkély mérete: -
Felszereltség: -
Parkolás: -
Kilátás: -
Egyéb extrák:  
Hirdető adatai
Hirdető neve: dh.hu - Nyíregyháza, Búza tér
Kapcsolattartó: Baloghné Járosi Rita
Hirdető telefonszáma: +36203665877
Honlap: -
 
Üzenetet küldhet a hirdetőnek, árajánlatot tehet az ingatlanra:
Az Ön neve:
Az Ön e-mail címe:
Üzenet: