Ingatlan Televízió
Ingatlan Televízió
további hirdetések
adatlap bezárása

Budapest, XV.kerület 
Bem utca 

Hivatkozási szám: 5908764
Ingatlan adatai
Irányár: 289 000 000 Ft
Típus: lakás (tégla)
Kategória: eladó
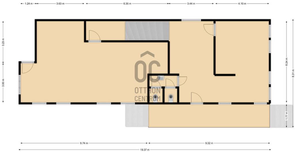
Alapterület: 400 m2
Fűtés: gáz (cirko)
Állapota: felújított
Szobák száma: 8
Építés éve: 1990
Szintek száma: 1
Részletes leírás
Ez a különleges, EXKLUZÍV ingatlan tökéletes választás családosok számára, akik a csendes, mégis központi elhelyezkedésű Rákospalota ZÖLDÖVEZETÉBEN keresnek új otthont.

A 400 nm-es használt ház 1500 nm-es telken helyezkedik el, ami bőséges teret biztosít a családi élethez és a szabadidős tevékenységekhez.
Az ingatlanban összesen 8 szoba található, melyek közül a tágas nappali a családi összejövetelek ideális helyszíne lehet.
Az egyedi tervezésű belső terek VILÁGOS és MODERN stílusban lettek kialakítva, így mindenki megtalálhatja a saját ízlésének megfelelő szegletet.

A házban 2 fürdőszoba található, ami különösen előnyös lehet egy nagyobb család számára, hiszen így mindenki KÉNYELMESEN elfér.
A 16 nm-es terasz és a 7 nm-es erkély tökéletes helyszínt biztosít a pihenéshez, ahol élvezheted a kertvárosi élet nyugalmát és a panorámát.
A fűtés gáz cirkóval, míg a hűtés KLÍMÁVAL megoldott, így az ingatlan egész évben kellemes hőmérsékletet biztosít.

A környék BIZTONSÁGOS és CSENDES, ideális otthont nyújtva a családok számára.
A közlekedési lehetőségek is KÍVÁLÓAK: a közeli busz- és villamosmegállók gyors hozzáférést biztosítanak Budapest belvárosához, így a munkába járás vagy a város felfedezése gyerekjáték.
Rákospalota számos bolt, iskola és egészségügyi intézmény közelében található, így minden szükséges szolgáltatás könnyen elérhető.

Ez a TEHERMENTES INGATLAN nemcsak otthon, hanem befektetési lehetőség is, hiszen a KÖRNYÉK FOLYAMATOSAN FEJLŐDIK, így az ingatlan értéke is növekedhet. Ha egy modern, világos, és TÁGAS otthonra vágysz, ahol a családod minden tagja megtalálja a helyét, ez az ingatlan tökéletes választás.

Bármilyen kérdésed van, vagy ha szeretnéd megtekinteni a házat,
Hívjon bizalommal a hét bármely napján.

289000000 Ft
Csuha Attila +36704545076
Email: csuha.attila@oc.hu
Várom megtisztelő hívását a hét bármely napján!

Referencia szám: H513602-ITV
További adatok
Telekterület: 1 500 m2
Kert mérete: -
Erkély mérete: 23 m2
Felszereltség: -
Parkolás: -
Kilátás: -
Egyéb extrák:  
Hirdető adatai
Hirdető neve: oc.hu - IX. kerület - Allure Residence
Kapcsolattartó: Csuha Attila
Hirdető telefonszáma: +36704657026
Honlap: -
 
Üzenetet küldhet a hirdetőnek, árajánlatot tehet az ingatlanra:
Az Ön neve:
Az Ön e-mail címe:
Üzenet: