Ingatlan Televízió
Ingatlan Televízió
további hirdetések
adatlap bezárása

Budapest, II.kerület 
 

Hivatkozási szám: 5909388
Ingatlan adatai
Irányár: 132 000 000 Ft
Típus: lakás (tégla)
Kategória: eladó
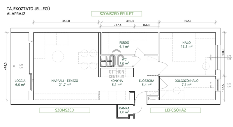
Alapterület: 63 m2
Fűtés: gáz (cirko)
Állapota: -
Szobák száma: 3
Építés éve: 1970
Szintek száma: -
Részletes leírás
Eladó egy frissen és magas színvonalon felújított, 60 nm-es, egyedi tervezésű lakás Budapest II. kerületének egyik legkedveltebb, csendes részén, Zöldmál városrészben.

Az ingatlan valódi ritkaság a piacon: minden részletében átgondolt, harmonikus enteriőr és tudatos térkihasználás jellemzi.
A lakás kialakításánál az esztétikum és a funkcionalitás tökéletes egyensúlya volt a cél — minden négyzetméter értéket képvisel.

Főbb jellemzők:
- Kiváló elrendezésű, világos terek,
- Egyedi gyártású bútorok és nyílászárók — prémium minőség, nem tömeggyártott megoldások,
- Magas színvonalú anyaghasználat és igényes kivitelezés,
- Fűtő-hűtő klíma minden helyiségben a maximális komfortért,
- Hang- és hőszigetelt falak és nyílászárók,
- Megbízható, hatékony kazánfűtés (Ariston),
- Két külön bejáratú saját tároló (2 nm és 4 nm).

A lakáshoz tartozó terasz intim, zöldre néző kilátást biztosít, ideális helyszíne egy nyugodt reggeli kávézásnak vagy egy hosszú nap utáni esti kikapcsolódásnak.
Az emeleti elhelyezkedés privát életteret nyújt, miközben a környék természetközeli hangulata folyamatosan jelen van.

Ez az otthon ideális választás azok számára, akik a minőséget, az egyediséget és a zöldövezeti nyugalmat keresik — kompromisszumok nélkül.

További információért vagy megtekintési időpont egyeztetéséhez keressen bizalommal.
További adatok
Telekterület: -
Kert mérete: -
Erkély mérete: 6 m2
Felszereltség: -
Parkolás: -
Kilátás: kertre néző
Egyéb extrák:  
Hirdető adatai
Hirdető neve: Otthon Centrum
Kapcsolattartó: Tóth Ágota
Hirdető telefonszáma: +36 70 716 9216
Honlap: -
 
Üzenetet küldhet a hirdetőnek, árajánlatot tehet az ingatlanra:
Az Ön neve:
Az Ön e-mail címe:
Üzenet: