Ingatlan Televízió
Ingatlan Televízió
további hirdetések
adatlap bezárása

Hajdúsámson 
 

Hivatkozási szám: 5909741
Ingatlan adatai
Irányár: 58 000 000 Ft
Típus: ház
Kategória: eladó
Alapterület: 75 m2
Fűtés: gáz (cirko)
Állapota: új
Szobák száma: 3
Építés éve: 2026
Szintek száma: -
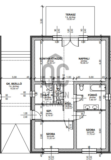
Részletes leírás
Debrecen vonzáskörzetében, Hajdúsámson központjának közelében új építésű
sorházak épülnek.
Az épület nettó 75 nm alapterületű, nappali+ 2 hálószoba.
A kiváló tervevezésnek köszönhetően a lakóegységek egy fedett gépkocsi beállóval érintkeznek,
így a lakótereknek nincs közös fala. Minden ingatlanhoz önálló utcafronttal rendelkező,
lekeríthető telekrész tartozik.

Főbb jellemzők:
- POROTHERM 30-as tégla falazat
- 15 cm homlokzati hőszigetelés
- cserép tetőhéjazat
- 3 rétegű üvegezésű műanyag ablakok
- gáz cirkó fűtés, padlófűtésen keresztül
- 2 db hűtő-fűtő klíma
- választható burkolatok és szaniterek
A műszaki tartalom irodánkban rendelkezésre áll.

Hitel, támogatott hitel igénybe vehető.
További adatok
Telekterület: 299 m2
Kert mérete: 299 m2
Erkély mérete: 15 m2
Felszereltség: -
Parkolás: -
Kilátás: -
Egyéb extrák:  
Hirdető adatai
Hirdető neve: Otthon Centrum
Kapcsolattartó: Koroknainé Erzsébet
Hirdető telefonszáma: +36 70 461 9356
Honlap: -
 
Üzenetet küldhet a hirdetőnek, árajánlatot tehet az ingatlanra:
Az Ön neve:
Az Ön e-mail címe:
Üzenet: