Ingatlan Televízió
Ingatlan Televízió
további hirdetések
adatlap bezárása

Debrecen 
 

Hivatkozási szám: 5909955
Ingatlan adatai
Irányár: 150 000 000 Ft
Típus: ház
Kategória: eladó
Alapterület: 150 m2
Fűtés: -
Állapota: új
Szobák száma: 4
Építés éve: 2026
Szintek száma: -
Részletes leírás
Debrecenben, a Kerekestelepen ÚJ ÉPÍTÉSŰ IKERHÁZ ELADÓ!

Eladásra kínálunk Debrecen kedvelt részén, épülő, 149 m²-es, modern ikerházat 475 m²-es telekkel. A kivitelező megbízható, Debrecen környékén számos referenciával rendelkezik.


Ingatlan típusa: ikerház

Alapterület: telekméret 475 m2 lakóterület 149 m2

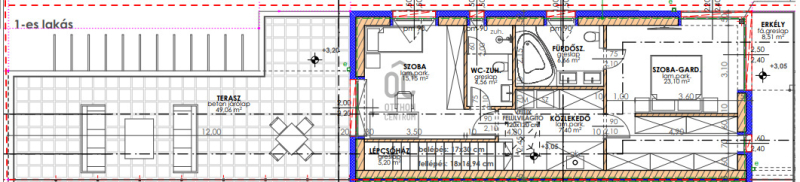
Szobák száma és elrendezés:

Földszint: 68,9 m2 + garázs 18 m2:

előszoba (9,42 m2) konyha-étkező-nappali (43,19 m2); kamra (2,16 m2), 1 szoba (10,8 m2), WC, zuhanyzó, garázs (18 m2) található. Terasz 26 m2

Emelet: (62,8 m2)

1.lakás: - szoba – gardrób (23,1 m2) – fürdőszoba (6,66 m2) – közlekedő (7,4 m2)
-szoba (15,15 m2) – zuhanyzós WC (4,56 m2) -lépcsőház (5,9 m2)
-erkély (8,5 m2)
-emeleti terasz 49 m2

2.lakás: - szoba (12 m2) – fürdőszoba (7,69 m2)
-szoba (11,4 m2)
-szoba (15,81 m2)
-közlekedő (10,98 m2)
-lépcsőház (5,2 m2)
-erkély (8,5 m2)
-emeleti terasz 49 m2

Falazat: 30 cm-es N+F tégla
Födém: kefni, monolit beton
Külső hőszigetelés: 20 cm EPS hőszigetelés
Nyílászárók: 90 mm 3 rétegű hőszigetelt üvegezéssel, elektromos garázskapu
Emeleti födém szigetelés: 30 cm XPS hőszigetelés PVC lemezborítással
Fűtés: hőszivattyús rendszer padlófűtéssel
Hűtés: magasoldalfal FANCOIL i (vizesrendszerű klíma)
Napelem: 5 kw
Járda: épület körül 80 cm szélességben
Utcai kerítés: lemez

Állapot: új építés

Irányár: 150 000 000 Ft

Új, energiatakarékos, prémium minőségű otthon!

Az átadás dátuma a szerződést követő 3 hónap .

Ügyfeleinket teljes körűen segítjük a vásárlás és eladás teljes folyamatában megbízható, díjtalan és bankfüggetlen hiteltanácsadói és kiiváló ügyvédi háttérrel.
További kérdéssel, megtekintéssel kapcsolatban várom hívását a hét bármelyik napján.!
További adatok
Telekterület: 475 m2
Kert mérete: 475 m2
Erkély mérete: 83 m2
Felszereltség: -
Parkolás: -
Kilátás: -
Egyéb extrák:  
Hirdető adatai
Hirdető neve: Otthon Centrum
Kapcsolattartó: Deák Andrea
Hirdető telefonszáma: +36 70 388 5986
Honlap: -
 
Üzenetet küldhet a hirdetőnek, árajánlatot tehet az ingatlanra:
Az Ön neve:
Az Ön e-mail címe:
Üzenet: