Ingatlan Televízió
Ingatlan Televízió
további hirdetések
adatlap bezárása

Szeged 
 

Hivatkozási szám: 5910427
Ingatlan adatai
Irányár: 297 000 000 Ft
Típus: lakás (tégla)
Kategória: eladó
Alapterület: 302 m2
Fűtés: gáz (cirko)
Állapota: felújított
Szobák száma: 7
Építés éve: 2019
Szintek száma: 2
Részletes leírás
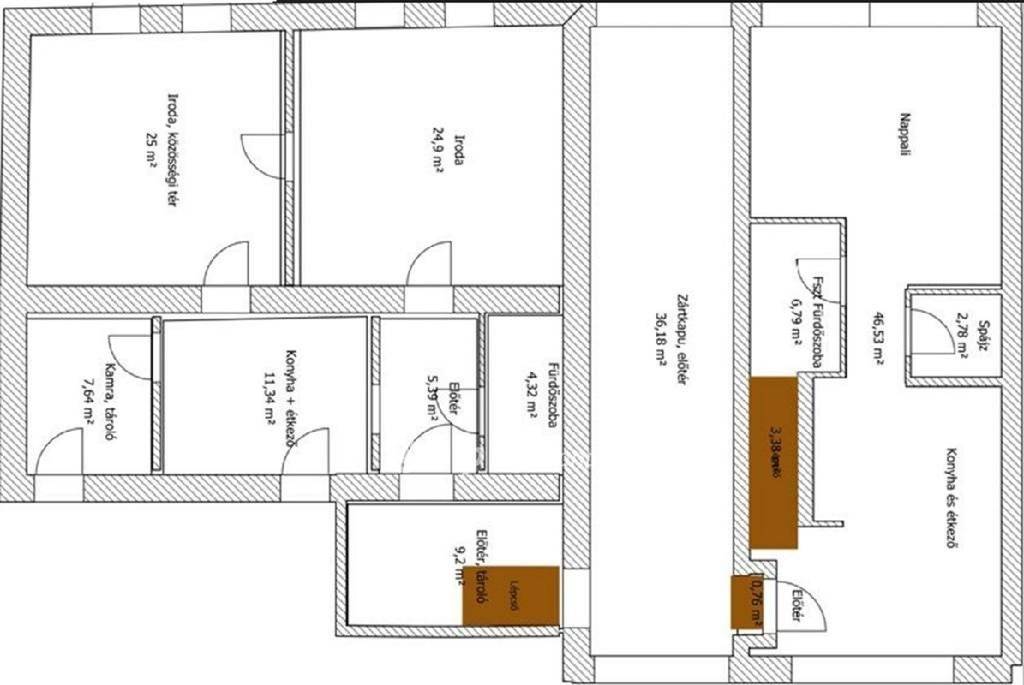
Szeged Alsóvárosának frekventált részén, a Mátyás tér közvetlen közelében eladó egy 540 nm-es telken fekvő, összesen 302 nm alapterületű, 2019-ben felújított, két különálló épületből álló családi házegyüttes.
Az épületek közös, zárt kapun keresztül közelíthetők meg. A lakrészek külön villany- és gázórákkal rendelkeznek, így a fogyasztás a támogatott kategórián belül marad. Az irányár a felújított, befejezett alapterületre vonatkozik.
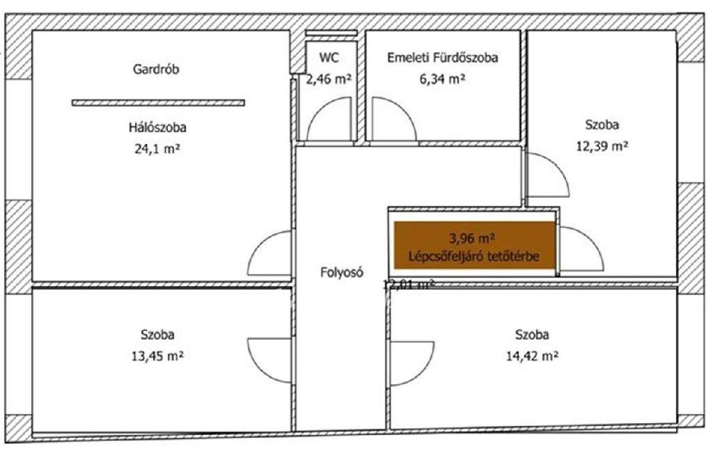
Ezen felül rendelkezésre áll még egy 80 nm-es pince, valamint egy beépíthető tetőtér is.
A főépület 167 nm-es családi lakóházként funkcionál. A kisebb, 88 nm-es épület jelenleg irodaként használatos. A tető cseréje és a szigetelés 2019-ben megtörtént, a fűtés kondenzációs kazánnal és klímával megoldott. Az éves gázfogyasztás mindössze 726 nm.
Az udvaron több autó számára van beállási lehetőség. A ház előtt 3 utcai parkoló áll rendelkezésre. Az ingatlan alacsony rezsijű, sokoldalúan hasznosítható. Ideális választás mindazoknak, akik modern technológiájú, csendes környezetben elhelyezkedő, mégis minden igényt kielégítő kétgenerációs otthont, keresnek.
További információért hívjon bizalommal akár hétvégén is! Megtekintésre telefonos egyeztetés alapján van lehetőség. CSOK és kedvezményes kamatozású lakásvásárlási és felújítási hitelek elérhetőek az OTP hátterével, irodánkban.

Referencia szám: M321570-ITV
További adatok
Telekterület: 540 m2
Kert mérete: -
Erkély mérete: -
Felszereltség: -
Parkolás: garázs
Kilátás: -
Egyéb extrák:  
Hirdető adatai
Hirdető neve: otpip.hu - Csongrád Fő utca 54 - OTP Ingatlanpont Iroda
Kapcsolattartó: Berényiné Annus Krisztina
Hirdető telefonszáma: +36304871084
Honlap: -
 
Üzenetet küldhet a hirdetőnek, árajánlatot tehet az ingatlanra:
Az Ön neve:
Az Ön e-mail címe:
Üzenet: