Ingatlan Televízió
Ingatlan Televízió
további hirdetések
adatlap bezárása

Teskánd 
 

Hivatkozási szám: 5910624
Ingatlan adatai
Irányár: 77 000 000 Ft
Típus: lakás (tégla)
Kategória: eladó
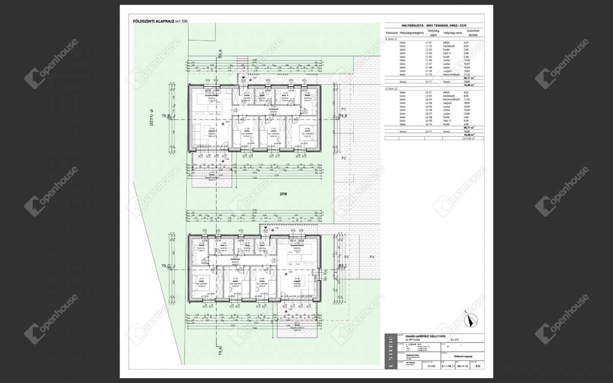
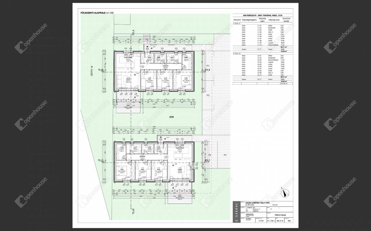
Alapterület: 91 m2
Fűtés: -
Állapota: új
Szobák száma: 4
Építés éve: 2025
Szintek száma: 1
Részletes leírás
Az Openhouse Zalaegerszeg Ingatlaniroda kínálatában eladó a #176415 hivatkozási számú teskándi családi ház.

Modern otthonra vágyik Zalaegerszeg közelében, nyugodt, zöldövezeti környezetben?
Most megteheti: Teskánd egyik legjobb részén új építésű, energiahatékony, tégla szerkezetű házak épülnek – kétféle kialakításban, igényes műszaki tartalommal.


A PROJEKT RÖVIDEN:




Összesen 9 telek – 18 külön lakóegység




Kétféle kivitel:




Ikerház (két lakás közös falon)




Különálló családi házak egy telken belül, közös fal nélkül






Minimum 80–90 m² hasznos alapterület




Legalább 3 szoba minden ingatlan esetében




Saját telekrész, önálló bejárat, privát kert




A projekt 2025 szeptemberében indul, az első ütemben 4 ingatlan épül meg:




1 ikerház (2 lakás)




vele szemben, egy telken 2 különálló ház
Az első lakás már gazdára talált – további 3 még elérhető!




A kivitelezés ütemezett, a következő építési szakasz az aktuális lakások értékesítésének függvényében indul.


FŐBB MŰSZAKI PARAMÉTEREK, AMELYEK MEGKÜLÖNBÖZTETIK EZT A PROJEKTET:




Tégla falazat – tartós, természetes alapanyag




15 cm vastag homlokzati szigetelés (nikecell)




30 cm kőzetgyapot szigetelés a födémen




Hőszivattyús fűtési rendszer – környezettudatos, hosszú távon is gazdaságos megoldás




Padlófűtés az egész házban




Prémium kategóriás burkolatok, szaniterek




Terrán sík cserépfedés – letisztult, modern megjelenés




Korszerű elektromos rendszer, előkészítés klímához, riasztóhoz




Igény esetén belső elrendezés egyedileg alakítható a kivitelezési szakaszban




ELHELYEZKEDÉS, INFRASTRUKTÚRA:


Teskánd ideális választás azok számára, akik csendes, nyugodt, biztonságos környezetben szeretnének élni, mégis csak pár percre Zalaegerszegtől.




Kiváló közlekedés, gyors megközelíthetőség




Óvoda, iskola, bolt, orvosi rendelő, buszmegálló a közelben




Zöldövezet, erdők, kirándulási lehetőségek – ideális családosoknak is




MIÉRT ÉRDEMES IDŐBEN DÖNTENI?




Már most kiválaszthatja a leginkább tetsző elrendezést és telket




Egyedi igények figyelembe vétele a tervezés és kivitelezés során




Az ár-érték arány kiemelkedő




Megbízható kivitelező, átlátható ütemezés




Már az első ütemben is jelentős érdeklődés: csak 3 elérhető ingatlan maradt az induló szakaszban









Ha felkeltette érdeklődését ez az eladó teskándi családi ház, vagy bármely más családi ház és bővebb információt szeretne, keressen bizalommal.Hivatkozási szám: #176415

Az Openhouse Zalaegerszeg Ingatlaniroda tagjaként várom Önt az országos hálózatunk teljes kínálatával.

A családi ház vásárláshoz hitelt igényelne? Ingyenes hitelközvetítéssel segít Önnek bankfüggetlen hitelszakértőnk.

További szolgáltatásainkkal (pl. értékbecslés, energetikai tanúsítvány, jogi háttér) is segítjük Önt a vásárlásban.
Az otthon érték. Az ingatlan üzlet.
További adatok
Telekterület: 400 m2
Kert mérete: -
Erkély mérete: -
Felszereltség: -
Parkolás: lakáshoz van kültéri parkoló
Kilátás: -
Egyéb extrák:  
Hirdető adatai
Hirdető neve: oh.hu - Openhouse Zalaegerszeg Ingatlaniroda
Kapcsolattartó: Bencik Márton
Hirdető telefonszáma: +36709468294
Honlap: -
 
Üzenetet küldhet a hirdetőnek, árajánlatot tehet az ingatlanra:
Az Ön neve:
Az Ön e-mail címe:
Üzenet: