Ingatlan Televízió
Ingatlan Televízió
további hirdetések
adatlap bezárása

Pécs 
Maléter Pál út 

Hivatkozási szám: 5910890
Ingatlan adatai
Irányár: 36 990 000 Ft
Típus: lakás (panel)
Kategória: eladó
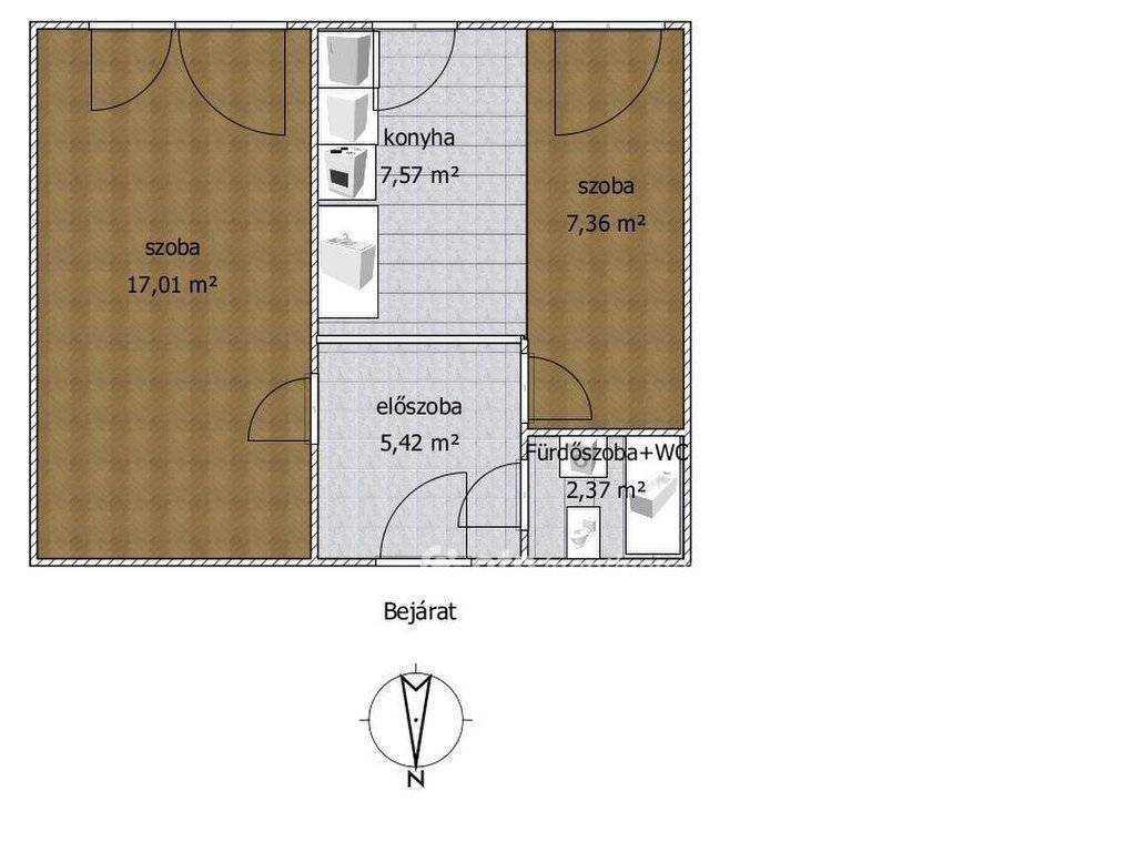
Alapterület: 39 m2
Fűtés: távfűtés
Állapota: felújított
Szobák száma: 1+1
Építés éve: 1980
Szintek száma: 1
Részletes leírás
Pécs- Kertváros egyik legkedveltebb részén, a Lahti utcában eladó egy földszinti lakás, hőszigetelt, 4 emeletes társasházban. Az ingatlan alapvetően 1,5 szobás, földszinti, 39 nm, de átalakított, a nappaliból 2 helyiség lett létrehozva, (gipszkarton fal, így igény szerint könnyen visszaalakítható), ezen felül további egy félszoba megtalálható az ingatlanban.
Részben felújított, a képeken látható állapotban, műanyag nyílászárók szúnyoghálókkal, redőnyökkel. Villanyvezetékek a közelmúltban cserélve. Távfűtéses, nagyméretű tároló jár hozzá, mely a szomszéddal közös használatú. Parkra néző ablakok. Nagyon jó lokáció: 100 M sugarú körben benzinkút, buszmegálló, boltok (Lidl, Spar, Tesco) iskola és étterem is megtalálható.
A lépcsőház tiszta és rendezett, megtakarítással rendelkezik és jó a lakóközösség is.
Minden fontos kiszolgáló egység elérhető közelségben van!
Amennyiben Kertváros kedvelt részén szeretne lakni, akkor nézze meg ezt a saját elképzelése szerint átalakítható lakást és tegyen egy ajánlatot!

Referenciaszám: M322847
További adatok
Telekterület: -
Kert mérete: -
Erkély mérete: -
Felszereltség: -
Parkolás: -
Kilátás: -
Egyéb extrák:  
Hirdető adatai
Hirdető neve: otpip.hu - Pécsvárad Bem utca 2 - OTP Ingatlanpont Iroda
Kapcsolattartó: Gábor Panna Rebeka
Hirdető telefonszáma: +36706790724
Honlap: -
 
Üzenetet küldhet a hirdetőnek, árajánlatot tehet az ingatlanra:
Az Ön neve:
Az Ön e-mail címe:
Üzenet: