Ingatlan Televízió
Ingatlan Televízió
további hirdetések
adatlap bezárása

Gárdony 
Gárdonyi Géza utca 

Hivatkozási szám: 5910910
Ingatlan adatai
Irányár: 99 900 000 Ft
Típus: lakás (tégla)
Kategória: eladó
Alapterület: 172 m2
Fűtés: gáz (cirko)
Állapota: felújított
Szobák száma: 3+3
Építés éve: 1988
Szintek száma: 4
Részletes leírás
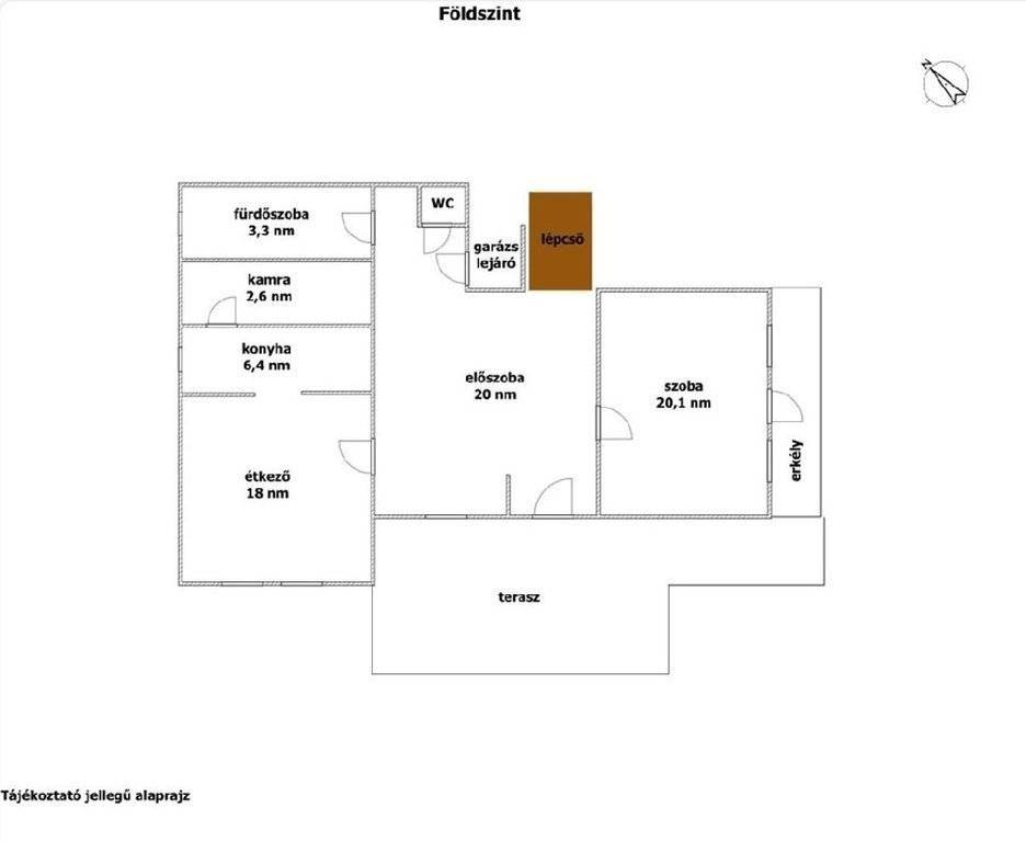
Fejér megye, Gárdony, Dinnyés 172 nm-es kétgenerációs családi ház eladó. A tehermentes, tégla falazatú ingatlan egy 1169 nm-es összközműves telken helyezkedik el, közel a vasútállomáshoz. A duplakomfortos családi házban 2 nappali, 1 szoba, 3 félszoba, 2 konyha, tágas étkező, kamra,3 fürdőszoba, 2 külön WC található, valamint tartozik hozzá terasz, 2 erkély, garázs, pince és kazánház. A fűtésről gázkazán és vegyes tüzelésű kazán gondoskodik, radiátoros hő leadással. Az ingatlan kétgenerációs, rezsije kedvező. A vasútállomás, buszmegálló, bolt séta távolságra találhatóak. Az ingatlanban rengeteg lehetőség rejlik, több szoba kialakítható, egy hangulatos családi ház a Velencei tó közelében. Teljes körű ügyintézésben segítjük ügyfeleinket díjtalanul: CSOK igénylése, kedvezményes hitel mobil bankári szolgáltatással, adásvétel teljes lebonyolításával.
További adatok
Telekterület: 1 169 m2
Kert mérete: -
Erkély mérete: 11 m2
Felszereltség: -
Parkolás: garázs
Kilátás: -
Egyéb extrák:  
Hirdető adatai
Hirdető neve: otpip.hu - Székesfehérvár Palotai út 8 - OTP Ingatlanpont Iroda
Kapcsolattartó: Darnai Henrietta
Hirdető telefonszáma: +36-20-487-4399
Honlap: -
 
Üzenetet küldhet a hirdetőnek, árajánlatot tehet az ingatlanra:
Az Ön neve:
Az Ön e-mail címe:
Üzenet: