Ingatlan Televízió
Ingatlan Televízió
további hirdetések
adatlap bezárása

Budapest, IV.kerület 
 

Hivatkozási szám: 5911137
Ingatlan adatai
Irányár: 93 700 000 Ft
Típus: lakás (tégla)
Kategória: eladó
Alapterület: 63 m2
Fűtés: egyéb
Állapota: új
Szobák száma: 3
Építés éve: 2026
Szintek száma: 1
Részletes leírás
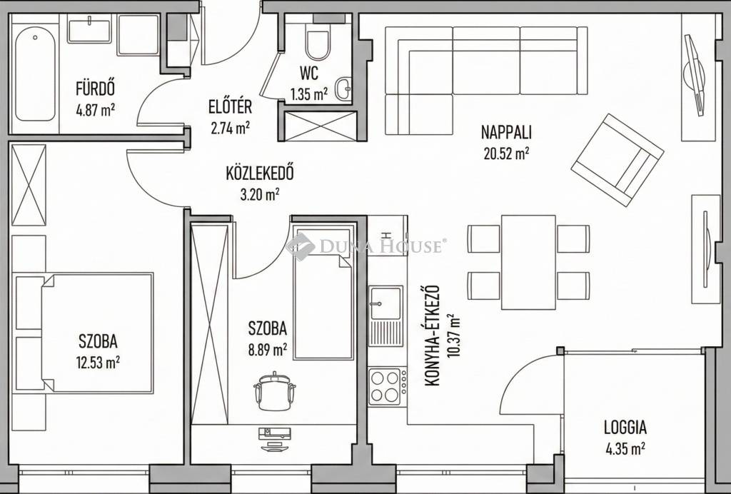
Újépítésű, háromszobás, mennyezeti hűtés-fűtéses lakás Újpesten modern otthon a természetvédelmi terület határánEladó egy nappali-konyha + 2 hálószobás, első emeleti, korszerű kialakítású lakás a IV. kerületben a város szélén csendes ősfás környezetben. Letisztult terek, energiatakarékos mennyezeti hűtés-fűtés rendszer, praktikus elrendezés ideális választás saját otthonnak és befektetésnek is.A lakásról:Az 1. emeleten található, átgondolt alaprajzú ingatlan kényelmes életteret biztosít akár családok, akár párok számára.Főbb jellemzők:Nappali-konyha + 2 külön nyíló hálószoba1 db fürdőszoba1 db külön WCMennyezeti hűtés-fűtés rendszerModern, korszerű műszaki megoldásokElső emeleti elhelyezkedésA nappali és a konyha egy légtérben kapott helyet, így világos, közösségi tér jött létre, ahol a családi és baráti együttlétek természetes központja alakul ki.A két külön hálószoba biztosítja az intimitást és a nyugodt pihenést.A mennyezeti hűtés-fűtés nemcsak energiatakarékos, hanem esztétikus megoldás is nincs radiátor, nincs klímaberendezés a falon, csak tiszta, letisztult enteriőr és kellemes hőérzet egész évben.Opcionális lehetőségek:Teremgarázshely vásárolhatóTároló vásárolhatóA parkolás és a tárolás kérdése így hosszú távon is megnyugtatóan rendezhető.A környékről Újpest, SzékesdűlőA IV. kerület folyamatosan fejlődő, egyre keresettebb része. Rendezett lakókörnyezet, jó infrastruktúra és kiváló közlekedés jellemzi.Közlekedés és infrastruktúra:M3 metró 10 perc alatt tömegközlekedéssel elérhetőMinden adott a kényelmes, modern városi élethez.Az életérzés:Letisztult, modern otthon, ahol a funkcionalitás és a komfort találkozik.Kényelmes reggelek a világos nappaliban, nyugodt esték a saját hálószobában.Biztonságos, jól megközelíthető környezet, ahol jó hazaérkezni.Ez nem csupán egy lakás ez egy tudatos döntés a minőség mellett.Kinek ideális?CsaládoknakFiatal pároknakBefektetőknek kiadási céllalAzoknak, akik modern gépészetű, fenntartható otthont keresnekEgy jól megválasztott lakás értékálló döntés.Ne maradjon le róla.Várom hívását a megtekintéshez!
További adatok
Telekterület: -
Kert mérete: -
Erkély mérete: 4 m2
Felszereltség: -
Parkolás: -
Kilátás: -
Egyéb extrák:  
Hirdető adatai
Hirdető neve: dh.hu - Szent István tér
Kapcsolattartó: Józsa Tamás
Hirdető telefonszáma: +36302212349
Honlap: -
 
Üzenetet küldhet a hirdetőnek, árajánlatot tehet az ingatlanra:
Az Ön neve:
Az Ön e-mail címe:
Üzenet: