Ingatlan Televízió
Ingatlan Televízió
további hirdetések
adatlap bezárása

Budapest, XVIII.kerület 
 

Hivatkozási szám: 5911467
Ingatlan adatai
Irányár: 145 000 000 Ft
Típus: ház
Kategória: eladó
Alapterület: 150 m2
Fűtés: -
Állapota: új
Szobák száma: 5
Építés éve: 2026
Szintek száma: -
Részletes leírás
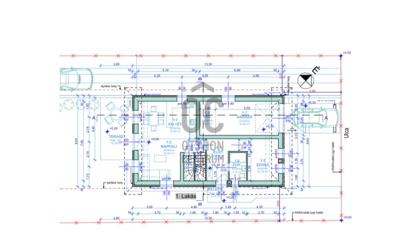
A Kossuth Ferenc-telepen elhelyezkedő, kiváló állapotú ház 144 négyzetméteres alapterülettel és egy 337 négyzetméteres telken várja új tulajdonosát, aki akár saját otthonát, akár befektetési céllal keres ingatlant.

Alsó szint:1 szoba, zuhanyzó-wc ,nappali-konyha ,kamra
Felső szint:3 szoba, háztartási helység, fürdő-wc

Ez az impozáns, öt szobás ingatlan tágas tereivel és világos, napfényes helyiségeivel ideális választás családok számára.
A két fürdőszoba maximális kényelmet biztosít, így a reggeli készülődés sosem lesz többé stresszes.
A ház megújuló energiaforrással fűtött( hőszivattyú ,), amely nemcsak a környezetbarát megoldások iránti elkötelezettséget tükrözi, hanem a fenntartási költségek csökkentését is lehetővé teszi.

Műszaki tartalom:
-viablokk 30 tégla
-Homlokzat 10 cm (EPS)
-Hőszivattyú 12 W
-3 rétegű ablakok
-Padlás szigetelés 30 cm (Gyapot)
-szaniterek 400.000 Ft-ig választható
-hideg burkolatok 7500Ft-ig választható meleg burkolat 5500 ft-ig
-beltéri ajtók 100.000 ft /db

színes nyílászárók kívül ( fehér vagy antracit választható) , elektromos kiállások,
elektromos kiállások kérhetők a redőnyre

Referenciákkal a Kivitelező rendelkezik!

A környék csendes, biztonságos, és remek lehetőségeket kínál a szabadidő eltöltésére. A közeli parkok és zöld területek ideálisak a családi programokhoz, valamint a sportolásra vágyók számára. A közlekedési lehetőségek is kiválóak: a környéken több buszjárat és villamosmegálló található, amelyek gyors és kényelmes hozzáférést biztosítanak Budapest belvárosához. Az autóval közlekedők számára pedig az M5-ös autópálya közelsége jelent jelentős előnyt, hiszen az ország többi része is könnyen megközelíthető.

Az energetikai tanúsítvány készítése folyamatban van, amint rendelkezésre áll, úgy azzal a hirdetés frissítésre kerül!

Az ingatlanpiac dinamikus, és mi itt vagyunk, hogy Ön a legjobb döntést hozhassa meg!
További adatok
Telekterület: 337 m2
Kert mérete: 337 m2
Erkély mérete: 16 m2
Felszereltség: -
Parkolás: -
Kilátás: -
Egyéb extrák:  
Hirdető adatai
Hirdető neve: Otthon Centrum
Kapcsolattartó: Kovács Henriett
Hirdető telefonszáma: +36 70 716 8686
Honlap: -
 
Üzenetet küldhet a hirdetőnek, árajánlatot tehet az ingatlanra:
Az Ön neve:
Az Ön e-mail címe:
Üzenet: