Ingatlan Televízió
Ingatlan Televízió
további hirdetések
adatlap bezárása

Budapest, XI.kerület 
 

Hivatkozási szám: 5911662
Ingatlan adatai
Irányár: 97 692 Ft
Típus: kereskedelmi/ipari ingatlan
Kategória: kiadó
Alapterület: 26 m2
Fűtés: -
Állapota: -
Szobák száma: -
Építés éve: -
Szintek száma: -
Részletes leírás
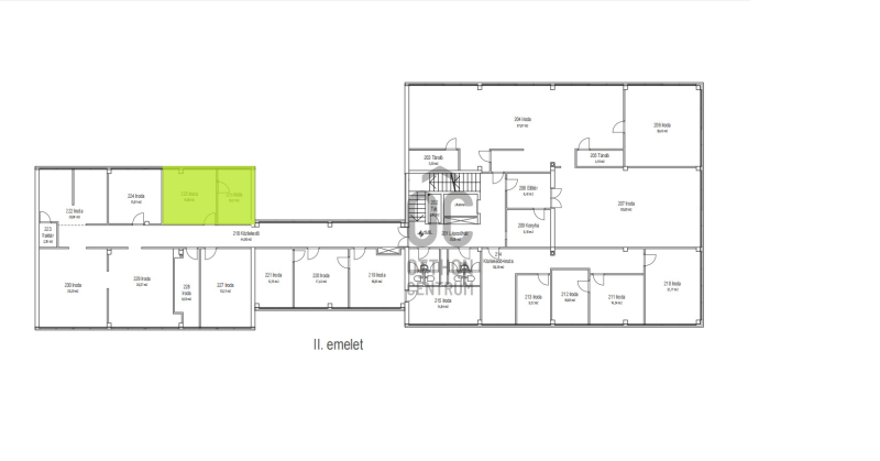
Irodaházban kiadó egy 26 nm-es iroda a XI. kerületben- Kelenföld

Frekventált helyen, viszont csendes, beépített, zöldövezeti rész mellett helyezkedik el.
Az irodaház modern és korszerű, azonban folyamatos fejlesztések várhatók a jövőben.

Paraméterek:
- 26 nm
- II. emelet
- 2 helyiségből álló iroda, zárható tárgyalóval
- a szinten mosdók, konyha áll rendelkezésre
- nagyon világos, elválasztott terek, zöldre néző kilátással
- a fűtést, hűtést elektromos klíma berendezés biztosítja
- a földszinten recepció található, egész napos koordinálással, vendégek fogadtatásával 8-17 óráig
- szintén a földszinten található egy vendéglátó egység, meleg étellel, szendvicsekkel, kávéval tudnak szolgálni
- zárt parkoló rész, ahol 1 db beálló hely bérelhető 40.000,- + ÁFA/hó összegért
- szinte azonnal költözhető
- bérleti díj: 260EUR + ÁFA/hó
- havi üzemeltetési költség 1950,- + ÁFA/nm

Ha felkeltette érdeklődését a kiadó irodablokk, várom hívását a hét bármely napján.
További adatok
Telekterület: -
Kert mérete: -
Erkély mérete: -
Felszereltség: -
Parkolás: -
Kilátás: -
Egyéb extrák:  
Hirdető adatai
Hirdető neve: Otthon Centrum
Kapcsolattartó: Kurai Kitti
Hirdető telefonszáma: +36 70 461 9246
Honlap: -
 
Üzenetet küldhet a hirdetőnek, árajánlatot tehet az ingatlanra:
Az Ön neve:
Az Ön e-mail címe:
Üzenet: