Ingatlan Televízió
Ingatlan Televízió
további hirdetések
adatlap bezárása

Budapest, V.kerület 
 

Hivatkozási szám: 5911850
Ingatlan adatai
Irányár: 247 000 000 Ft
Típus: lakás (tégla)
Kategória: eladó
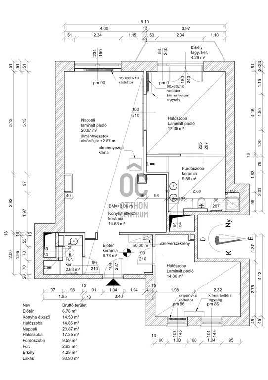
Alapterület: 86 m2
Fűtés: házközponti fűtés
Állapota: felújított
Szobák száma: 3
Építés éve: 1930
Szintek száma: 1
Részletes leírás
Megvételre kínálok az 5. kerület Lipótvárosban egy 5. emeleti, nettó 86,6 nm-es, 3 szobás, ERKÉLYES, DUPLAKOMFORTOS LUXUSOTTHONT, mely LOXONE OKOSOTTHON RENDSZERREL kiépített.
A lakás teljes felújításon esett át, melyhez prémium minőségű anyagokat használatak fel. Az intelligens otthon kezelése Loxone programmal vezérelt, melyet mobiltelefonra töltve sok hasznos funkció (világítás, redőnyök, stb) kézből irányíthatóak!
Az ingatlan designe bútorokkal teljesen berendezett, mely a vételár részét képezi.

Az fő hálószobát egy széles, eltolható üvegajtó választja el a fürdőszobától, melyet ha kihúzunk a két tér egybeolvad. A main bedroom további ékessége egy hatalmas prémium, bőr körágy, mely vonalához igazodó beépített szekrény teszi különlegesen vonzóvá.
Az ingatlan tulajdoni lap szerint 85 nm. de az átalakítást követően nőtt a hasznos alapterület száma.

A két mosdóval és plusz zuhanyzóval rendeklező fő fürdőszoba ékessége egy szabadonálló, alsó szegélyében megvilágított Villeroy & Boch kád

Lakás tulajdonságai:

- nettó 86, 6 nm, 3 szoba,
- amerikai konyhás nappali,
- 4,29 nm erkély,
- 5. emelet
- liftes ház,
- Ny-i tájolás,
- utcai nézet,
- Loxon okosotthon rendszer,
- házközponti fűtés lapradiátorokkal, melyet egyes részeken padlófűtés egészít ki,
- elektromos redőnyök,
- fa nyílászárók,
- minden szobában hűtő-fűtő klíma,
- 3 méteres belmagasság,
- design bútorok,
- kristály csillárok,
- gépesített konyhabútor,
- fürdőszoba Villeroy & Boch Finion szabadonálló káddal + zuhannyal,
- vendég fürdőszoba zuhannyal, wc-vel, kézmosóval,
- falba épített széf,
- közös költség 54 eFt/hó, mely tartalmazza a fűtés költségét is,
- azonnal költözhető

Ház:
A Bauhaus stílusú 5 emeletes lakóház tágas, rendezett, lakóközössége kultúrált és csendes.

Környék:
A lakás Budapest 5. kerületének egyik legkedveltebb részén, a Szemere utcában található, amely sétatávolságra fekszik a parlament impozáns épületétől és a Honvéd park hangulatos zöldterületétől – ideális választás mind városi életérzéshez, mind csendes pihenéshez.
A környék kulturális és történelmi értékekben gazdag: a Duna-part, a Duna korzó, valamint neves éttermek, kávéházak és butikok mind egy rövid sétára vannak, így a mindennapi élet és a városi élmények egyaránt könnyen elérhetők.

A közlekedés kiváló: a Kossuth tér 250 méterre van, ahol az M2 metróval könnyedén a város másik pontján lehetünk. Továbbá még számos trolibusz és villamos is sétatávolságra található.

Ez a lokáció ideális választás mind saját otthonnak, mind befektetésnek – a belváros szívében, kulturális, gasztronómiai és közlekedési szempontból egyaránt prémium ellátottsággal.

Ez a lakás nem csak otthonként, hanem befektetésként is tökéletes választás azok számára, akik a belvárosi luxust és kényelmet keresik. Az ingatlan minden részlete a legmagasabb színvonalat képviseli, így garantáltan megfelel a legigényesebb vásárlók elvárásainak is!

Jöjjön és helyezze magát kényelembe álmai otthonában!

Várom megtisztelő hívását a hét minden napján!

Referencia szám: H513544
További adatok
Telekterület: -
Kert mérete: -
Erkély mérete: 4 m2
Felszereltség: -
Parkolás: utcán, közterületen
Kilátás: -
Egyéb extrák:  
Hirdető adatai
Hirdető neve: oc.hu - III. kerület - Óbuda
Kapcsolattartó: Király Szilvia
Hirdető telefonszáma: +36707169561
Honlap: -
 
Üzenetet küldhet a hirdetőnek, árajánlatot tehet az ingatlanra:
Az Ön neve:
Az Ön e-mail címe:
Üzenet: