Ingatlan Televízió
Ingatlan Televízió
további hirdetések
adatlap bezárása

Budapest, XX.kerület 
 

Hivatkozási szám: 5911898
Ingatlan adatai
Irányár: 390 000 000 Ft
Típus: egyéb ingatlan
Kategória: eladó
Alapterület: 1 230 m2
Fűtés: -
Állapota: felújítást igényel
Szobák száma: -
Építés éve: 1975
Szintek száma: -
Részletes leírás
XX. kerület központjában, forgalmas utcáról nyíló, Önálló Épület Eladó.
Telek mérete: 1179nm
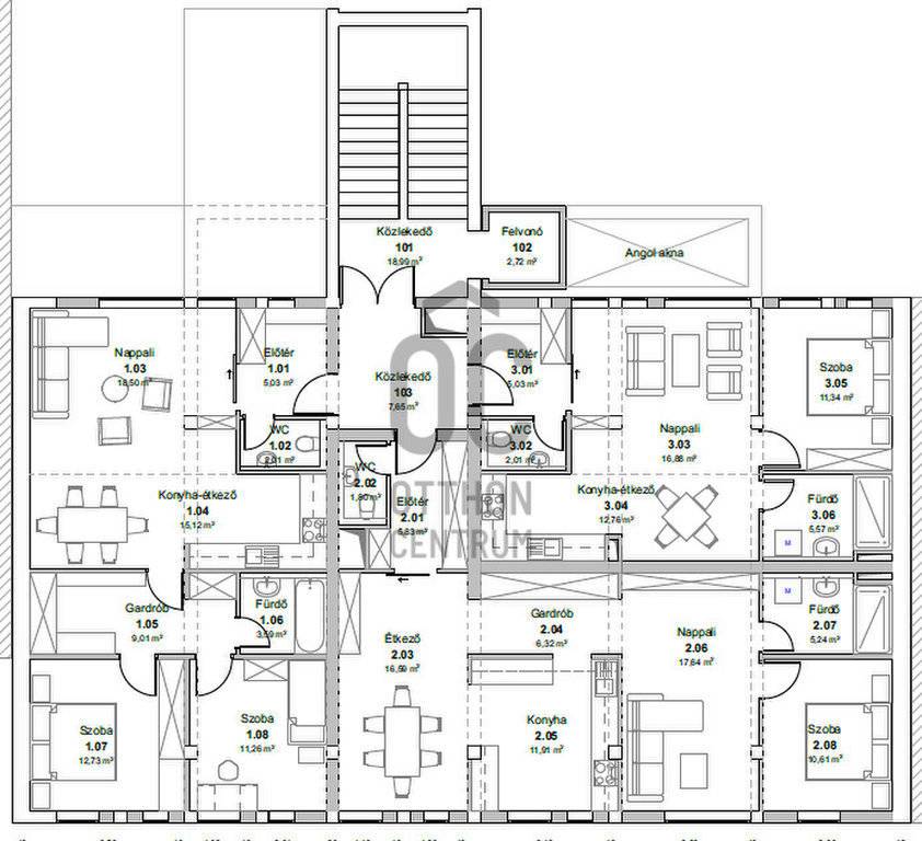
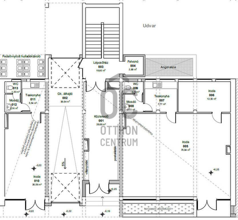
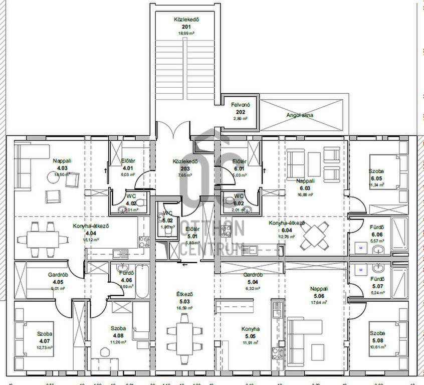
Épület: pince szint, földszint + 2 emelet + tetőtér
Pince hasznos mérete: 152nm
Földszint hasznos mérete: 218nm
I. és II. emelet hasznos mérete: 235nm
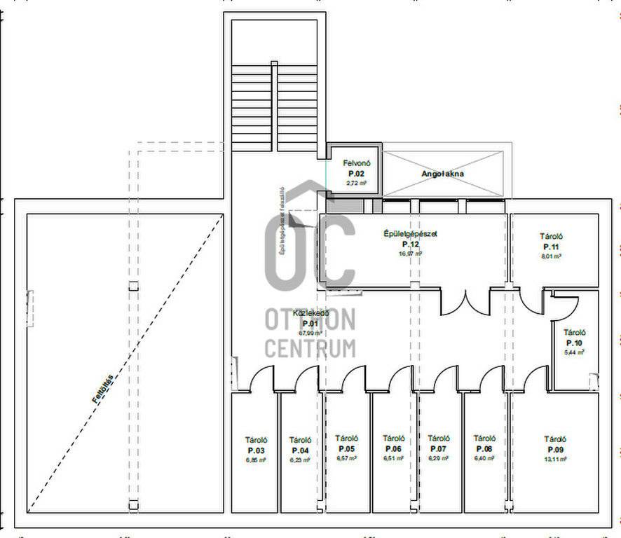
Tetőtér hasznos mérete: 187nm
Lépcsőház mérete ezekben nincs benne
Hátsó melléképület mérete: 198nm
Hasznosítható: 10 lakásos Társasház kocsi beállókkal, Intézmény épület, Szálloda, Iroda, Oktatási Intézmény, Iskola, Óvoda
Hasznosítási javaslat: Társasház, garázzsal, tárolókkal - Építési osztály 9-11 lakásra ad engedélyt
Műszaki jellemzők: száraz masszív pince, megerősített alapozás, tégla falak: épület váza rendben van, tégláig kell csak visszabontani
Ipari árammal is el van látva
Tulajdoni lap szerinti besorolás: Kivett Tanműhely, Udvar
Cég a tulajdonos, az ár nettó ár, fordított áfás
Villany, víz, gáz, csatorna kiépítve
Építési övezet: Vt-H/Ln3
Üres, már nem működik benne semmi, felújítandó az állapot
Lokáció tökéletes, közelben Iskola, Óvoda, Bevásárlási lehetőségek, tömegközlekedés szempontjából is ideális, számtalan busz és villamos megálló van a közelben, megközelíthető bármelyik kerület
További adatok
Telekterület: -
Kert mérete: -
Erkély mérete: -
Felszereltség: -
Parkolás: lakáshoz van kültéri parkoló
Kilátás: -
Egyéb extrák:  
Hirdető adatai
Hirdető neve: oc.hu - XX. kerület - Török Flóris utca
Kapcsolattartó: Váradi Márton
Hirdető telefonszáma: +36704657036
Honlap: -
 
Üzenetet küldhet a hirdetőnek, árajánlatot tehet az ingatlanra:
Az Ön neve:
Az Ön e-mail címe:
Üzenet: