Ingatlan Televízió
Ingatlan Televízió
további hirdetések
adatlap bezárása

Budapest, XV.kerület 
 

Hivatkozási szám: 5911905
Ingatlan adatai
Irányár: 69 990 000 Ft
Típus: lakás (panel)
Kategória: eladó
Alapterület: 70 m2
Fűtés: távfűtés
Állapota: felújított
Szobák száma: 3
Építés éve: 1974
Szintek száma: 1
Részletes leírás
Világos, csendes felső emeleti otthon zöld környezetben – Kőrakkáspark

Van az a lakás, ahová belépve az ember azonnal érzi: itt jó élni.
Fényes terek, nyugalom és egy olyan ház, ahol valóban otthon vannak az emberek – nem csak laknak.

Ez a XV. kerületi Körakkáspark egyik háromemeletes társasházának legfelső szintjén található, 70 m²-es, erkélyes, háromszobás lakás pontosan ezt az élményt adja.

Csendes, rendezett lépcsőház, mindössze nyolc lakásos társasház, biztonságos környezet – itt nincs átjáróház-hangulat, csak nyugalom.

RÖVID ÖSSZEFOGLALÓ

XV. kerület – Körakkáspark
70 m² lakótér + 4 m² erkély
3 külön nyíló szoba
legfelső emelet (3/3)
zárt, tiszta lépcsőház
panelprogramos szigetelés – már kifizetve
műanyag nyílászárók
tehermentes ingatlan
közös tároló + pince

AZ ELHELYEZKEDÉS – NYUGALOM ÉS ÉLHETŐ TEREK

A Körakkáspark azon kevés budapesti részek egyike, ahol valóban érződik a tér és a levegő.
Nem zsúfolt, nem zajos — inkább rendezett, zöld és kimondottan élhető.

A házak alacsonyak, sok a fa, a parkosított területek természetesen simulnak bele a környezetbe. Itt a reggeli kávé nem dudálásra, hanem csendre indul.

A közelben minden megtalálható, ami a mindennapokhoz kell: boltok, szolgáltatások, tömegközlekedés gyorsan elérhető, miközben a lakás környezete megőrzi nyugodt karakterét.

AZ ÉPÜLET – KIS LAKÓKÖZÖSSÉG, JÓ ÁLLAPOT

A háromemeletes társasház zárt lépcsőházas, rendezett és csendes.
Mindössze nyolc lakás — nincs folyamatos jövés-menés, nincs zaj.

A panelprogram keretében az épület szigetelése már elkészült és rendezett, a nyílászárók műanyagra lettek cserélve, így a hő- és hangszigetelés is kifejezetten jó.

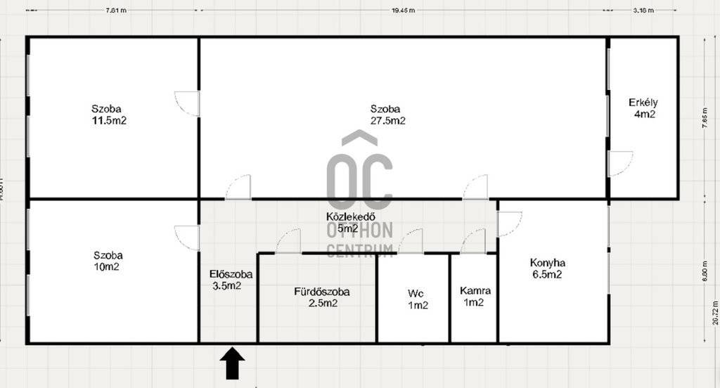
A LAKÁS – VILÁGOS TEREK, JÓ ALAPOK

A lakás elrendezése kifejezetten praktikus:

tágas, 27,5 m²-es nappali vagy nagy szoba

két külön nyíló hálószoba

külön konyha

fürdő + külön WC

kamra

közlekedő és előszoba jól kihasználható terekkel

4 m²-es erkély

A felső emeleti elhelyezkedésnek köszönhetően a lakás világos egész nap, és különösen csendes.

Állapotát tekintve részben felújítandó, ami kiváló lehetőség arra, hogy az új tulajdonos saját ízlésére formálja — a nyílászárók már korszerűek, az épület műszaki állapota rendezett, így a fókusz valóban a belső tér kialakításán lehet.

MIÉRT JÓ VÁLASZTÁS?

keresett, alacsony házas környék
legfelső emelet – nincs feletted lakó
világos, jól szellőző lakás
csendes társasház
jó alap egy értéknövelő felújításhoz
tehermentes, gyorsan birtokba vehető

Ez a lakás ideális választás lehet:

– saját otthonnak nyugodt környezetben
– családnak a jó elosztás miatt
– befektetésnek is, mert a környék stabilan keresett

Ha szeretnél egy valóban élhető, csendes, jó adottságú lakást egy ritka adottságú környéken, ez az ingatlan megér egy személyes megtekintést.

Díjmentes, bankfüggetlen hiteltanácsadással támogatjuk vevő ügyfeleinket a számukra legelőnyösebb finanszírozási döntések meghozatalában. Opcionálisan igénybe vehető kiegészítő szolgáltatásainkkal – mint ügyvédi közreműködés, energetikai tanúsítvány vagy villamos biztonsági felülvizsgálat – teljes körű szakmai támogatást nyújtunk az adásvétel folyamatának minden egyes lépésénél.
----------------------------------------------
A hirdetésben szereplő információk tájékoztató jellegűek. A tévedés és az árváltoztatás jogát fenntartjuk.
További adatok
Telekterület: -
Kert mérete: -
Erkély mérete: 4 m2
Felszereltség: -
Parkolás: -
Kilátás: -
Egyéb extrák:  
Hirdető adatai
Hirdető neve: oc.hu - VI. kerület - Ó utca
Kapcsolattartó: Katona Judit
Hirdető telefonszáma: +36704693611
Honlap: -
 
Üzenetet küldhet a hirdetőnek, árajánlatot tehet az ingatlanra:
Az Ön neve:
Az Ön e-mail címe:
Üzenet: