Ingatlan Televízió
Ingatlan Televízió
további hirdetések
adatlap bezárása

Budapest, XIV.kerület 
Fűrész utca 

Hivatkozási szám: 5912057
Ingatlan adatai
Irányár: 80 230 000 Ft
Típus: lakás (tégla)
Kategória: eladó
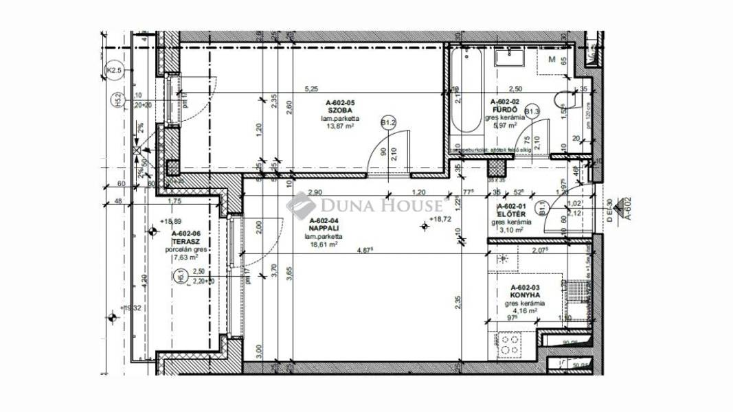
Alapterület: 49 m2
Fűtés: -
Állapota: új
Szobák száma: 2
Építés éve: 2025
Szintek száma: 1
Részletes leírás
Zugló szívében, Budapest 14. kerületében modern és fiatalos otthonok eladók

Budapest 14. kerületének központjában, Zugló szívében, a legkorszerűbb építészeti megoldásokkal épülő lakópark. Ez a barátságos megjelenésű és praktikus elrendezésű lakópark modern, fiatalos otthonokat kínál az érdeklődők számára. A dinamikusan fejlődő környéken elhelyezkedő beruházás két épületből áll, melyekben összesen 203 lakás található. A földszinti lakások közvetlen kertkapcsolattal rendelkeznek, amelyek ideálisak a természet közelségét kedvelők számára.

Korszerű és fenntartható megoldások

A két épületből álló fejlesztésben a fűtési és hűtési energiát környezetbarát levegős-hőszivattyú rendszer biztosítja. A mennyezetbe épített, szabad szemmel nem látható hűtő-fűtő rendszerek révén a helyiségek hőmérséklete egyedileg szabályozható, akár intelligens/okos hálózat részeként. Az otthonokat világos életterek és jól használható helyiségek jellemzik, amelyek megfelelnek a modern életvitel követelményeinek.

Széleskörű lakáskínálat

Az új projektben különböző méretű és elrendezésű lakások találhatók, a kisebb alapterületű stúdió lakásoktól kezdve az akár több hálószobás otthonokig. A változatos kínálat lehetőséget biztosít mind az első lakást kereső fiatalok, mind a CSOK+ nyújtotta lehetőségeket kihasználni szándékozó családosok, illetve a befektetési céllal vásárlók számára is.

Tervezett átadás: 2026.I.negyedév

Fedezze fel álmai otthonát ebben az új lakóparkban, ahol a modern életvitel minden igényét kielégítő lakások várják új tulajdonosaikat. Érdeklődjön még ma, és találja meg az Önnek legmegfelelőbb otthont Zugló legújabb, korszerű lakóparkjában!
Hitellel vásárlás esetén bankfüggetlen és DÍJMENTES hiteltanácsadó közreműködését biztosítjuk, aki a teljes folyamaton végigkíséri Önt.
Az adásvétel biztonságos és gördülékeny bonyolítása érdekében tapasztalt ingatlan szakjogászaink szolgáltatását is ajánlom.

Referencia szám: PR070693/LK/23027
További adatok
Telekterület: -
Kert mérete: -
Erkély mérete: 8 m2
Felszereltség: -
Parkolás: -
Kilátás: -
Egyéb extrák:  
Hirdető adatai
Hirdető neve: dh.hu - Kispest
Kapcsolattartó: Takácsné Domján Adrienn
Hirdető telefonszáma: +36703077503
Honlap: -
 
Üzenetet küldhet a hirdetőnek, árajánlatot tehet az ingatlanra:
Az Ön neve:
Az Ön e-mail címe:
Üzenet: