Ingatlan Televízió
Ingatlan Televízió
további hirdetések
adatlap bezárása

Budapest, XIX.kerület 
 

Hivatkozási szám: 5912483
Ingatlan adatai
Irányár: 319 990 000 Ft
Típus: egyéb ingatlan
Kategória: eladó
Alapterület: 511 m2
Fűtés: -
Állapota: felújított
Szobák száma: -
Építés éve: 2001
Szintek száma: -
Részletes leírás
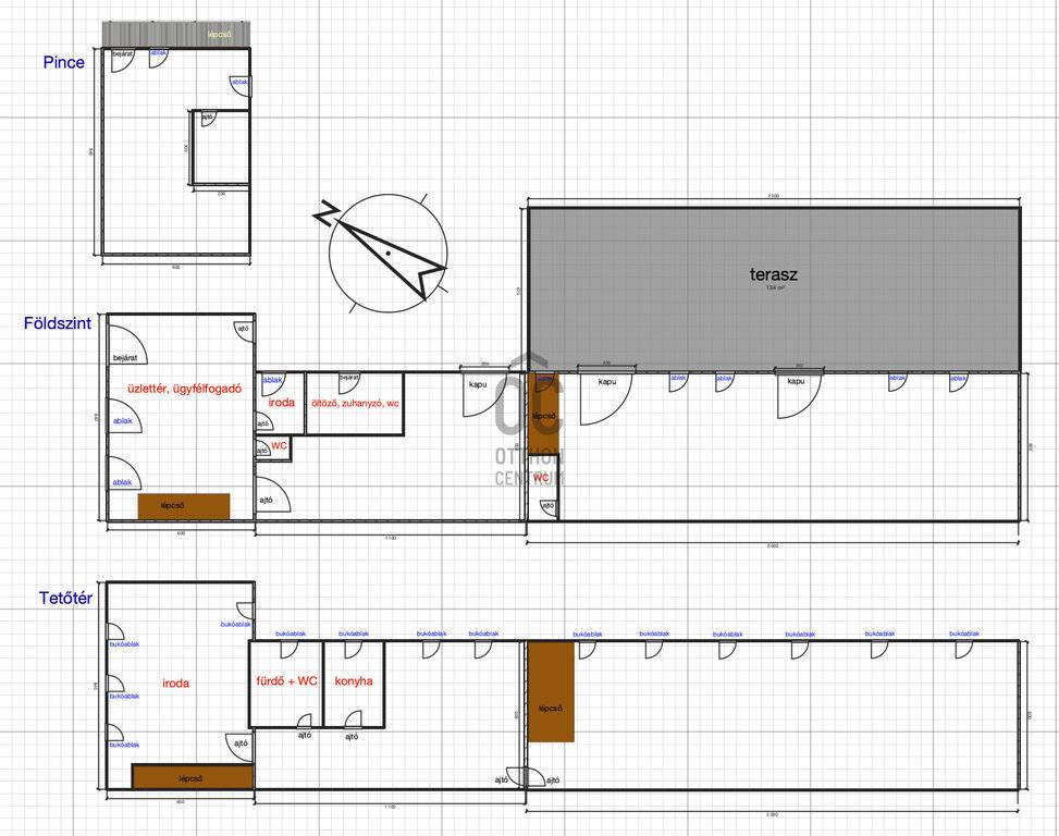
Kispest frekventált részén eladó egy sokoldalúan hasznosítható üzleti ingatlan, jó megközelíthetőséggel, utcafronti elhelyezkedéssel. A 545 m²-es telken egy 238 m² alapterületű, háromszintes (pince + földszint + tetőtér), jelenleg is üzletként és raktárként funkcionáló épület valamint egy 134m²-es terasz található.
A födszinten egy utcafronti üzlettér, egy kisméretű irodai szoba, egy dolgozói öltöző zuhanyzókkal, illetve két nagy alapterületű műhely/raktár kapott helyet, több bejárattal és kapuval.
A félnyeregtetős, 3,5 m csúcsmagasságú beépített tetőtéren egy nagyobb irodai helyiség, egy fürdőszoba, egy konyha, illetve üzemi funkciókra alkalmas tér található.
Az épület alatt egy 2,5 m belmagasságú pince biztosít extra raktározási lehetőséget.
A 134 m²-es terasz (fedett udvari rész) alkalmas pakolásra, tárolásra vagy kültéri munkavégzésre.
Az aszfaltozott udvarnak köszönhetően az ingatlan alkalmas kisebb méretű teherautók fogadására és rakodására is.

Ideális lehet:
kereskedelmi tevékenységre
bemutatóterem + műhely kombinációra
szerviznek, üzemnek
központi irodának raktárral
webáruházas logisztikai bázisnak
oktatóközpontnak
egészségügyi központnak
sportközpontnak

Jó lokáció, rugalmasan alakítható terek, komplex üzleti működésre optimalizált kialakítás.

Beépíthetőség: 60% maximális beépíthetőség.
Szintterületi mutató: Maximum 1,9 m²/m².
Maximális építménymagasság: 10,5 m.

Referencia szám: UZ019425-ITV
További adatok
Telekterület: -
Kert mérete: -
Erkély mérete: 134 m2
Felszereltség: -
Parkolás: -
Kilátás: -
Egyéb extrák:  
Hirdető adatai
Hirdető neve: oc.hu - XXI. kerület - Zrínyi utca
Kapcsolattartó: Bittera Viktória
Hirdető telefonszáma: +36703885031
Honlap: -
 
Üzenetet küldhet a hirdetőnek, árajánlatot tehet az ingatlanra:
Az Ön neve:
Az Ön e-mail címe:
Üzenet: