Ingatlan Televízió
Ingatlan Televízió
további hirdetések
adatlap bezárása

Egyházasfalu 
Kossuth Lajos utca 

Hivatkozási szám: 5912551
Ingatlan adatai
Irányár: 62 900 000 Ft
Típus: lakás (tégla)
Kategória: eladó
Alapterület: 232 m2
Fűtés: gáz
Állapota: felújított
Szobák száma: 6
Építés éve: 1986
Szintek száma: 1
Részletes leírás
+++ 5 SZOBÁS, KÉTGENERÁCIÓS CSALÁDI HÁZ - EGYHÁZASFALU +++

Egyházasfalun eladó egy 232 m²-es, kétszintes családi ház, 3296 m²-es telken. Az ingatlan lakható állapotú, statikailag kiváló, szerkezetileg stabil épület, mely akár kétgenerációs otthonnak is tökéletes választás a három külön bejáratnak köszönhetően.


AZ INGATLAN FŐBB JELLEMZŐI:

- 232 m² lakóterület
- 3296 m² telek
- lebetonozott padlástér
- tető és tetőszerkezet nagyon jó állapotú
- statikailag kiváló állapot
- gázkazán
- vegyes tüzelésű kazán
- garázs (a házból is megközelíthető)
- több melléképület
- 3 külön bejárat
- kétgenerációs kialakításra alkalmas
- a telek hátsó része gondozás alatt áll

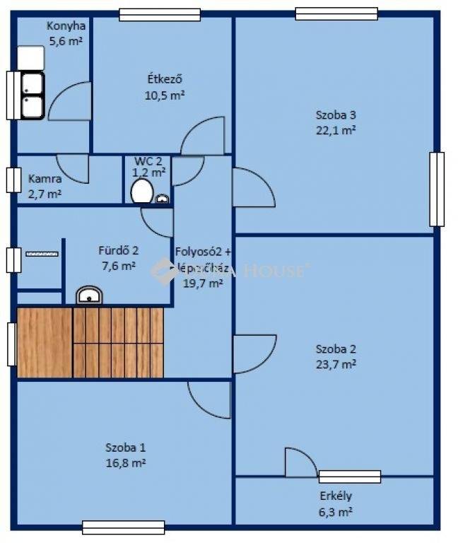
FÖLDSZINT:
- nappali
- 2 szoba
- fürdőszoba WC-vel
- kazánház
- folyosó
- garázs

EMELET:
- 3 szoba
- konyha
- étkező
- fürdőszoba
- külön WC
- háztartási helyiség
- közlekedő
- erkély

Az ingatlan ideális választás nagycsaládosoknak vagy két generáció együttélésére, valamint azok számára, akik nagy telekkel rendelkező, stabil szerkezetű házat keresnek. Az alaprajz tájékoztató jellegű.
További adatok
Telekterület: 3 296 m2
Kert mérete: -
Erkély mérete: -
Felszereltség: -
Parkolás: -
Kilátás: -
Egyéb extrák:  
Hirdető adatai
Hirdető neve: dh.hu - Mosonmagyaróvár
Kapcsolattartó: Vaszari Richárd
Hirdető telefonszáma: +36706078641
Honlap: -
 
Üzenetet küldhet a hirdetőnek, árajánlatot tehet az ingatlanra:
Az Ön neve:
Az Ön e-mail címe:
Üzenet: