Ingatlan Televízió
Ingatlan Televízió
további hirdetések
adatlap bezárása

Bakóca 
 

Hivatkozási szám: 5912888
Ingatlan adatai
Irányár: 10 500 000 Ft
Típus: lakás (tégla)
Kategória: eladó
Alapterület: 98 m2
Fűtés: egyéb
Állapota: felújítást igényel
Szobák száma: 2
Építés éve: 1970
Szintek száma: 1
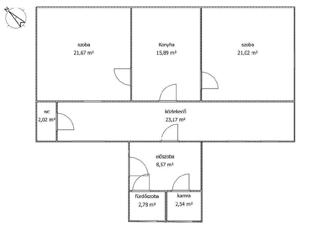
Részletes leírás
Oroszlótól 11 kilóméterre Bakócán eladó egy 1970-ben épült családi ház.
2 szobás, 98 négyzetméter alapterületű, 2609 négyzetméteres lejtős telek tartozik hozzá.
Felújítandó állapotú. Víz az utcában van, Villany van. 3 Tartály van telepítve az udvarban a szennyíznek. Gáz nincs az egész faluban. Az új tulajdonosra vár a víz és a szennyvíz bekötése a házba. Az alaprajzon jelzett helyiségek szabadon változtathatók. Az épület statikailag rendben van. A melléképületekben állattárasra van lehetőség.
Referenciaszám: M323043

10500000 Ft

Referencia szám: M323043
További adatok
Telekterület: 2 609 m2
Kert mérete: -
Erkély mérete: -
Felszereltség: -
Parkolás: lakáshoz van kültéri parkoló
Kilátás: -
Egyéb extrák:  
Hirdető adatai
Hirdető neve: otpip.hu - Pécs Király utca 75 - OTP Ingatlanpont Iroda
Kapcsolattartó: Vincze László György
Hirdető telefonszáma: +36209384141
Honlap: -
 
Üzenetet küldhet a hirdetőnek, árajánlatot tehet az ingatlanra:
Az Ön neve:
Az Ön e-mail címe:
Üzenet: