Ingatlan Televízió
Ingatlan Televízió
további hirdetések
adatlap bezárása

Lepsény 
 

Hivatkozási szám: 5912919
Ingatlan adatai
Irányár: 72 000 000 Ft
Típus: ház
Kategória: eladó
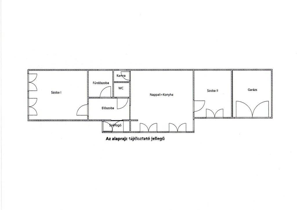
Alapterület: 84 m2
Fűtés: elektromos
Állapota: felújított
Szobák száma: 2
Építés éve: 1960
Szintek száma: 1
Részletes leírás
Eladó Fejér vármegyében, Lepsény központjában egy 82 nm-es, napfényes, felújított családi ház egy 2130 nm-es tágas telken. A ház praktikus elrendezésű: 2 külön nyíló szoba, tágas nappali-konyha és fürdőszoba. A nagy ablakoknak köszönhetően minden helyiség világos, barátságos hangulatú.

A műszaki tartalom kiemelkedő: új tető és szigetelés, napelemes rendszer az alacsony rezsiért, valamint többféle fűtési lehetőség. A telek számos lehetőséget rejt: kertészkedés, önellátó gazdálkodás, pihenőkert vagy akár további bővítés.

Lepsény jó közlekedésű település: az M7-es autópálya és a 7-es főút révén könnyen elérhető Székesfehérvár, Siófok és Budapest (kb. 1 óra). A környéken óvoda, iskola, boltok és orvosi ellátás biztosítja a kényelmes mindennapokat.

Ajánlott: családoknak nagy kerttel, nyugalmat keresőknek, gazdálkodásban gondolkodóknak, illetve befektetőknek.

Ne hagyja ki! További információért és megtekintésért keressen bizalommal!
További adatok
Telekterület: 2 130 m2
Kert mérete: -
Erkély mérete: -
Felszereltség: -
Parkolás: garázs
Kilátás: -
Egyéb extrák:  
Hirdető adatai
Hirdető neve: otpip.hu - Székesfehérvár Palotai út 8 - OTP Ingatlanpont Iroda
Kapcsolattartó: Forgács Martin
Hirdető telefonszáma: +36702287071
Honlap: -
 
Üzenetet küldhet a hirdetőnek, árajánlatot tehet az ingatlanra:
Az Ön neve:
Az Ön e-mail címe:
Üzenet: