Ingatlan Televízió
Ingatlan Televízió
további hirdetések
adatlap bezárása

Barcs 
Béke utca 

Hivatkozási szám: 5912982
Ingatlan adatai
Irányár: 6 300 000 Ft
Típus: lakás (tégla)
Kategória: eladó
Alapterület: 130 m2
Fűtés: egyéb
Állapota: felújítást igényel
Szobák száma: -
Építés éve: 1900
Szintek száma: -
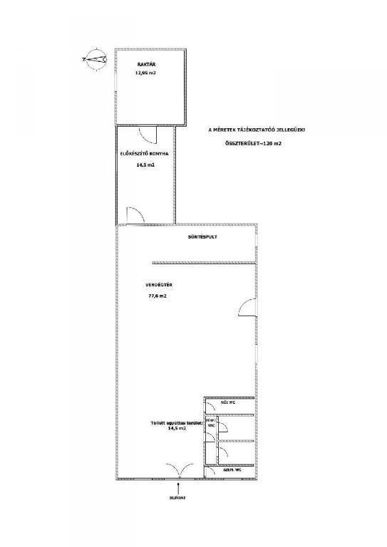
Részletes leírás
Barcson eladó egy korábbi üzlethelyiség, Az ingatlan külsőleg - belsőleg gyenge állapotú, évek óta nincs használatban, fűtése nem megoldódott, a korábbi cserépkályha is felújításra szorul.
Az adott ingatlan jelenleg államilag támogatott hitel felvételére nem alkalmas!
További adatok
Telekterület: -
Kert mérete: -
Erkély mérete: -
Felszereltség: -
Parkolás: -
Kilátás: -
Egyéb extrák:  
Hirdető adatai
Hirdető neve: otpip.hu - Kaposvár Zárda utca 21 - OTP Ingatlanpont Iroda
Kapcsolattartó: Boda Sándor
Hirdető telefonszáma: +36204958228
Honlap: -
 
Üzenetet küldhet a hirdetőnek, árajánlatot tehet az ingatlanra:
Az Ön neve:
Az Ön e-mail címe:
Üzenet: