Ingatlan Televízió
Ingatlan Televízió
további hirdetések
adatlap bezárása

Balatonalmádi 
 

Hivatkozási szám: 5913003
Ingatlan adatai
Irányár: 129 959 100 Ft
Típus: lakás (tégla)
Kategória: eladó
Alapterület: 68 m2
Fűtés: egyéb
Állapota: új
Szobák száma: 3
Építés éve: 2025
Szintek száma: 1
Részletes leírás
Partközeli, BALATONI PANORÁMÁS újépítésű apartman eladó Balatonalmádiban!

Eladó Balatonalmádi egyik legjobb lokációjában, a Wesselényi Lakóparkban egy újépítésű, prémium apartmant, amely mindössze 50 méterre található a Balaton partjától, a Wesselényi strand bejárata pedig 2 perc sétával elérhető.

Itt valóban együtt élvezheti a partközelséget és a lenyűgöző balatoni panorámát.

Az apartman főbb jellemzői:
Összes alapterület: 68 m²
Lakótér: 52,5 m²
Elosztás: amerikai konyhás nappali + 2 külön nyíló szoba
Külön fürdőszoba és WC
Hatalmas, 31 m²-es erkély, ahol a balatoni naplementék mindennapossá válnak.

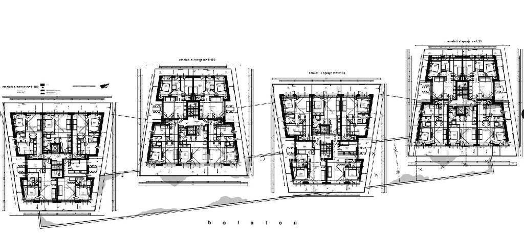
A projektben négy különálló, négyszintes épület valósul meg, ahol a 2. és 3. emeletről teljes balatoni panoráma tárul a lakók elé.

Az apartmanok mérete 45–77 m², az erkélyek pedig 14–33 m² közöttiek – igazi ritkaság a környéken.

Prémium műszaki tartalom
Modern hőszivattyús rendszer
Padlófűtés + fan-coil hűtés-fűtés
3 rétegű üvegezésű nyílászárók
20 cm vastag homlokzati hőszigetelés
Elektromos redőnyök előkészítve
Lift minden épületben
Lapostetős kialakítás UV- és PVC-szigeteléssel

Parkolás és extra lehetőségek
Parkolóhely igény szerint: bruttó 9,9 millió Ft
Elektromos autótöltési lehetőség

Befektetésnek is kiváló

Az apartmanok emelt szintű szerkezetkész állapotban kerülnek átadásra (lépcsőház, teraszok, erkélyek burkolva).
Az ár 27% ÁFÁ-t tartalmaz, így céges vásárlás esetén különösen kedvező, ráadásul rugalmas fizetési ütemezés is elérhető.
________________________________________
Ritka lehetőség a Balaton partján:
partközeli elhelyezkedés, örök balatoni panoráma, modern műszaki tartalom és exkluzív lakókörnyezet.
Ideális saját nyaralónak, állandó otthonnak vagy értékálló befektetésnek.

Érdeklődjön most, és válasszon a még elérhető apartmanok közül!

129959100 Ft

Referencia szám: M305570
További adatok
Telekterület: -
Kert mérete: -
Erkély mérete: 31 m2
Felszereltség: -
Parkolás: garázs
Kilátás: -
Egyéb extrák:  
Hirdető adatai
Hirdető neve: otpip.hu - Veszprém Kossuth utca 8 - OTP Ingatlanpont Iroda
Kapcsolattartó: Ranga Gabriella
Hirdető telefonszáma: +36-70-393-4916
Honlap: -
 
Üzenetet küldhet a hirdetőnek, árajánlatot tehet az ingatlanra:
Az Ön neve:
Az Ön e-mail címe:
Üzenet: