Ingatlan Televízió
Ingatlan Televízió
további hirdetések
adatlap bezárása

Budapest, XIV.kerület 
 

Hivatkozási szám: 5913387
Ingatlan adatai
Irányár: 79 900 000 Ft
Típus: lakás (tégla)
Kategória: eladó
Alapterület: 75 m2
Fűtés: -
Állapota: felújítást igényel
Szobák száma: 3
Építés éve: 1930
Szintek száma: -
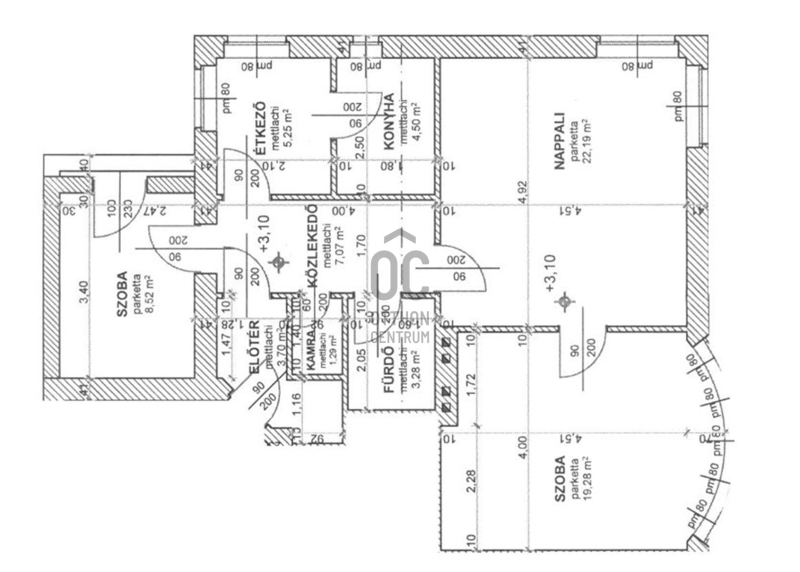
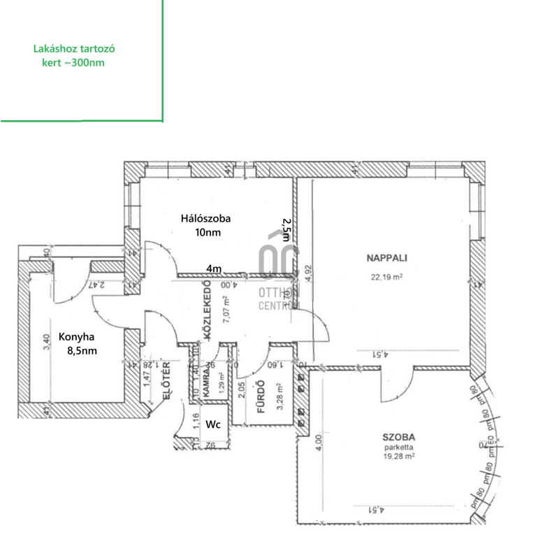
Részletes leírás
Zugló méltán kedvelt területén Herminamezőn eladósorba került egy nagypolgári lakás. A gyönyörű, szigetelt villaház kevés lakószámú.
A szép, fenyőkkel és gyümölcsfákkal tarkított kertben ehhez a lakáshoz tartozik egy saját 350nm-s kertrész. Az 1. emeleten elhelyezkedő
3 szobás ingatlan felújítandó, mely nagy lehetőség arra, hogy saját elképzelés szerint újítsuk fel bár a jelenlegi beosztása is kitűnő. Különösen a félköríves
ablakokkal bíró szoba, a különálló konyha és a nagy nappali. Az előtérből nyílik egy külön wc. Hatalmas ablakai révén és DNY-i fekvésének köszönhetően
a lakás napfényes. A villaház kívül-belül hangulatos, ehhez a lépcsőház korabeli korlátai is hozzájárulnak. Tartozik a lakáshoz még egy autóbeálló is a kert
utcafronthoz közelebb eső részén. Lokációja szerencsés, hiszen közelben több közlekedési eszköz és bevásárlási lehetőség is megtalálható, ugyanakkor
a lakás és a kert is csendes. Ha családdal költözne, különösen jó választás lehet. De akár pároknak vagy befektetésre is ajánlom!
Várom hívását, ez egy hiánypótló lakás! Le ne maradjon!
További adatok
Telekterület: -
Kert mérete: -
Erkély mérete: -
Felszereltség: -
Parkolás: -
Kilátás: kertre néző
Egyéb extrák:  
Hirdető adatai
Hirdető neve: Otthon Centrum
Kapcsolattartó: Deák Zsuzsanna
Hirdető telefonszáma: +36 70 716 8831
Honlap: -
 
Üzenetet küldhet a hirdetőnek, árajánlatot tehet az ingatlanra:
Az Ön neve:
Az Ön e-mail címe:
Üzenet: