Ingatlan Televízió
Ingatlan Televízió
további hirdetések
adatlap bezárása

Szigethalom 
 

Hivatkozási szám: 5913995
Ingatlan adatai
Irányár: 53 500 000 Ft
Típus: telek
Kategória: eladó
Alapterület: -
Fűtés: -
Állapota: -
Szobák száma: -
Építés éve: -
Szintek száma: -
Részletes leírás
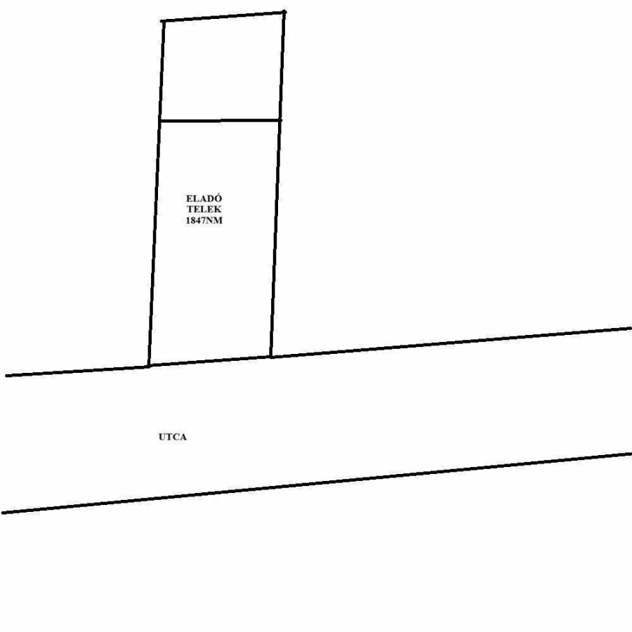
Sokoldalúan beépíthető telek eladó Szigethalmon!

Eladásra kínálunk egy telket, amely rugalmas beépítési lehetőségeivel számos beruházás számára ideális választás.
A terület többféle funkció számára is kiválóan alkalmas: társasház építésére, családi ház kialakítására, vállalkozói szolgáltatások létesítésére, üzlethelyiség vagy vegyes funkciójú épület megvalósítására is.

A telek környezete rendezett, megközelíthetősége kiváló, infrastruktúrája teljes, így akár azonnal megkezdhető a tervezés és a fejlesztés.

Ha olyan ingatlanlehetőséget keres, amelyet saját igényeire formálhat, és biztos alapot ad bármilyen fejlesztési elképzeléshez, akkor ez a telek tökéletes választás.
Amennyiben felkeltettem érdeklődését, várom megtisztelő hívását a hét bármely napján. Az OTP Bankcsoport teljes körű ügyintézéssel áll az eladók és a vevők rendelkezésére! Az adásvételi szerződés megkötéséhez igény szerint megbízható ügyvédi közreműködést és sorban állás nélküli hitel tanácsadást biztosítunk ügyfeleink részére! Referenciaszám : M318787
További adatok
Telekterület: 1 847 m2
Kert mérete: -
Erkély mérete: -
Felszereltség: -
Parkolás: -
Kilátás: -
Egyéb extrák:  
Hirdető adatai
Hirdető neve: otpip.hu - Dunaharaszti Bocskai utca 10 - OTP Ingatlanpont Iroda
Kapcsolattartó: Terjék Nikolett Erzsébet
Hirdető telefonszáma: +36709419494
Honlap: -
 
Üzenetet küldhet a hirdetőnek, árajánlatot tehet az ingatlanra:
Az Ön neve:
Az Ön e-mail címe:
Üzenet: