Ingatlan Televízió
Ingatlan Televízió
további hirdetések
adatlap bezárása

Berekböszörmény 
 

Hivatkozási szám: 5914197
Ingatlan adatai
Irányár: 35 000 000 Ft
Típus: ház
Kategória: eladó
Alapterület: 69 m2
Fűtés: egyéb
Állapota: felújított
Szobák száma: 2
Építés éve: 1970
Szintek száma: 1
Részletes leírás
Berekböszörmény nyugodt, nem forgalmas, aszfaltos utcájában kínálunk megvételre egy 69 m2-es, kétszobás családi házat, amely egy 2 205 m2-es, részben körbekerített telken helyezkedik el. A környezet csendes, a szomszédság rendezett és barátságos.

Az ingatlan beton alapon, tégla és vályog falazattal épült, kívül 10 cm szigeteléssel ellátva. A fa gerendás tetőszerkezet lemezfedést kapott, amely kb. 4-5 éve teljes felújításon esett át, csakúgy mint a víz- és villamos hálózat, a burkolatok, a nyílászárók és a belső terek gipszkartonozása. A fűtést egy nagy teljesítményű pelletes Ferroli kazán biztosítja radiátoros hőleadókkal.

Az udvar több funkcióra kialakított: fa gyerekjátszóházzal, csúszdával és hintákkal, fúrt kúttal, tágas fa tárolóval, külön elkerített résszel állattartásra, valamint betonozott területen kutya kennelel. A telek hátsó része veteményesnek vagy további hasznosításra is kiváló.

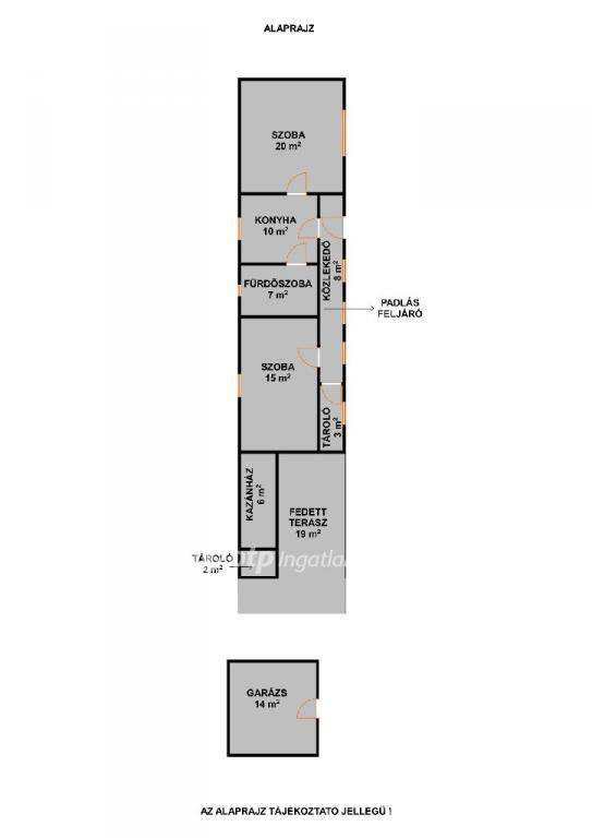
Helyiségek:
- Szoba: 20 m2
- Szoba: 15 m2
- Konyha: 10 m2
- Fürdőszoba: 7 m2
- Közlekedő: 8 m2
- Tároló: 3 m2
- Kazánház: 6 m2
- Tároló: 2 m2
- Fedett terasz: 19 m2 ( beépíthető szobának is)
- Különálló garázs: 14 m2

A hirdetésben tervezett látványképek is meg vannak jelenítve, hogy segítsenek a végleges megjelenés pontosabb elképzelésében!
További információért hívjon bizalommal akár hétvégén is. Megtekintésre telefonos egyeztetés alapján van lehetőség. Kedvezményes kamatozású lakásvásárlási, felújítási hitelek, OTTHON START valamint CSOK és Babaváró ügyintézés az OTP hátterével irodánkban.
További adatok
Telekterület: 2 205 m2
Kert mérete: -
Erkély mérete: -
Felszereltség: -
Parkolás: -
Kilátás: -
Egyéb extrák:  
Hirdető adatai
Hirdető neve: otpip.hu - Debrecen Kürtös utca 8 - OTP Ingatlanpont Iroda
Kapcsolattartó: Mester Tibor
Hirdető telefonszáma: +36-20-806-7007
Honlap: -
 
Üzenetet küldhet a hirdetőnek, árajánlatot tehet az ingatlanra:
Az Ön neve:
Az Ön e-mail címe:
Üzenet: