Ingatlan Televízió
Ingatlan Televízió
további hirdetések
adatlap bezárása

Kecskemét 
 

Hivatkozási szám: 5914494
Ingatlan adatai
Irányár: 629 000 000 Ft
Típus: kereskedelmi/ipari ingatlan
Kategória: eladó
Alapterület: 13 305 m2
Fűtés: -
Állapota: új
Szobák száma: -
Építés éve: 2025
Szintek száma: -
Részletes leírás
Tisztelt Érdeklődő!

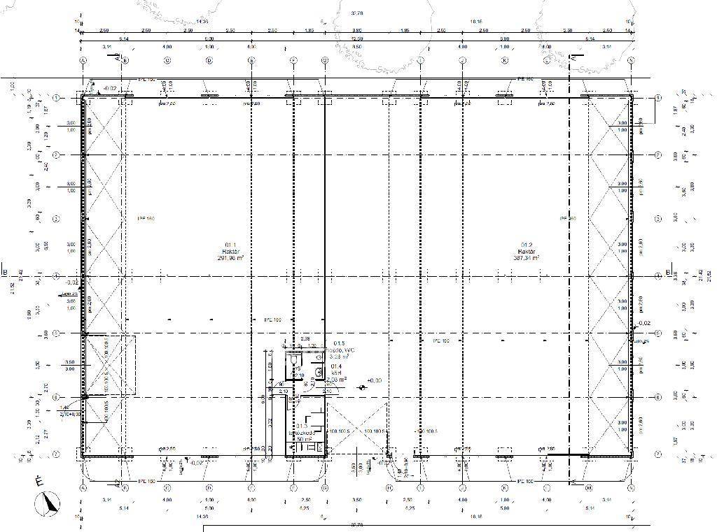
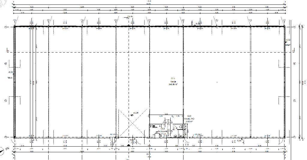
Kecskeméten, főút melletti ipari övezetben kínálunk eladásra egy 1656 nm-es, két új csarnokból álló ipari ingatlan 13 305 nm-es telken. A beépíthetőség 40%, így még nagyjából 3660 nm csarnok építhető.

Főbb adatok:

Két csarnok: 694 nm + 962 nm(építés: 2024-2025).
Acélvázas szerkezet, 10 cm fal- és 12 cm tetőszendvicspanel.
Belmagasság: 6-7,5 m.
Hőszivattyú és padlófűtés a nagyobb csarnokban.
60 kW-os napelemrendszer.
Áram: 3×32 A bekötve, saját trafóval 3×1000 A-ig bővíthető.
Irodai és szociális blokk.
2 fúrt kút, öntözőrendszer, riasztó.
Tervezett 2870 nm térburkolat (alapanyag megvan).
Zárt, bekerített telek 3 bejárattal.

Kiváló elhelyezkedés, ideális raktározásra, logisztikára vagy gyártásra.

Referencia szám: M319196
További adatok
Telekterület: -
Kert mérete: -
Erkély mérete: -
Felszereltség: -
Parkolás: lakáshoz van kültéri parkoló
Kilátás: -
Egyéb extrák:  
Hirdető adatai
Hirdető neve: otpip.hu - Budapest I. kerület Fő utca 7 - OTP Ingatlanpont Iroda
Kapcsolattartó: Sárközi Zsolt
Hirdető telefonszáma: +36-70-735-9544
Honlap: -
 
Üzenetet küldhet a hirdetőnek, árajánlatot tehet az ingatlanra:
Az Ön neve:
Az Ön e-mail címe:
Üzenet: