Ingatlan Televízió
Ingatlan Televízió
további hirdetések
adatlap bezárása

Miskolc 
Győri kapu 

Hivatkozási szám: 5914541
Ingatlan adatai
Irányár: 27 900 000 Ft
Típus: lakás (panel)
Kategória: eladó
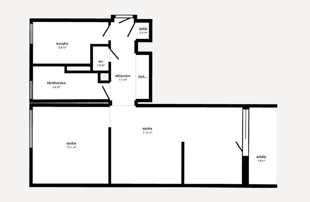
Alapterület: 54 m2
Fűtés: gáz (konvektor)
Állapota: felújított
Szobák száma: 2
Építés éve: 1975
Szintek száma: 1
Részletes leírás
Eladó 2 szobás lakás Miskolc közkedvelt részén, a Győri kapuban!
Miskolc Győri kapu városrészében, egy 4 emeletes társasház 4. emeletén kínálunk megvételre egy 54 m2-es, 2 szobás lakást.
Az ingatlan praktikus elrendezésű, világos helyiségekkel rendelkezik, így ideális választás lehet fiatal pároknak, kisebb családnak vagy akár befektetés céljára is.
Főbb jellemzők:
-54 nm
alapterület
-2 külön szoba
-Konvektoros fűtés
-Tehermentes, rövid időn belül birtokba vehető
-Közkedvelt, jól ellátott környék
A lakás elhelyezkedése kiváló: a belváros mindössze 10 perc alatt elérhető, a közelben boltok, iskola, óvoda, tömegközlekedési lehetőségek megtalálhatók.
Remek lehetőség saját otthonnak vagy biztos befektetésnek egyaránt!

Amennyiben az ingatlan felkeltette az érdeklődését, hívjon bizalommal és tekintsük meg együtt akár hétvégén is! OTP Banki hátterünknek köszönhetően finanszírozási igényekben (pl. Otthon Start Hitel Program, Babaváró, CSOK, Felújítási hitel, stb.) is állunk ügyfeleink rendelkezésére. Az ingatlan előre egyeztetett időpontban megtekinthető, megbízható ügyvédi közreműködést, szerződéskötéshez irodai hátteret biztosítunk. Referencia szám: M320727
További adatok
Telekterület: -
Kert mérete: -
Erkély mérete: -
Felszereltség: -
Parkolás: -
Kilátás: -
Egyéb extrák:  
Hirdető adatai
Hirdető neve: otpip.hu - Miskolc Corvin utca 1-3 - OTP Ingatlanpont Iroda
Kapcsolattartó: Baranyai Marianna
Hirdető telefonszáma: +36-30-439-0146
Honlap: -
 
Üzenetet küldhet a hirdetőnek, árajánlatot tehet az ingatlanra:
Az Ön neve:
Az Ön e-mail címe:
Üzenet: