Ingatlan Televízió
Ingatlan Televízió
további hirdetések
adatlap bezárása

Székesfehérvár 
 

Hivatkozási szám: 5914749
Ingatlan adatai
Irányár: 104 000 000 Ft
Típus: lakás (tégla)
Kategória: eladó
Alapterület: 65 m2
Fűtés: -
Állapota: felújított
Szobák száma: 3
Építés éve: 2024
Szintek száma: 1
Részletes leírás
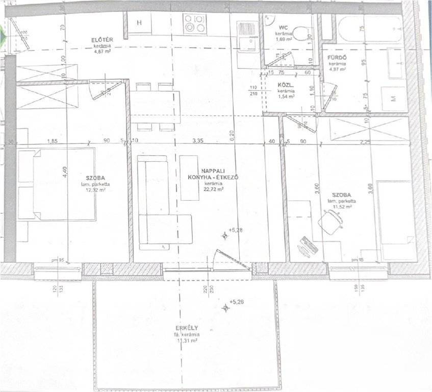
Székesfehérváron, a belváros közelében eladó egy 2024 októberében átadott, új építésű lakás. Az ingatlan a társasház hátsó, udvari részén található, ezért kifejezetten csendes és az utcazajtól mentes. Déli fekvésének köszönhetően a terek naposak, kifejezetten világosak.
A 66,5 nm-es alapterület 60 nm lakóteret és egy 11,3 nm-es teraszt foglal magában. A lakás elosztása praktikus: amerikai konyhás nappali, két különnyíló hálószoba, előszoba, tágas fürdő és egy különálló WC található.

A gépészet kiváló. A fűtést és hűtést korszerű hőszivattyús rendszer biztosítja, padlófűtéssel. A fenntartási költség alacsony, a műszaki tartalom megfelel egy új építésű, energiatakarékos otthonnal szemben támasztott elvárásoknak. A vételár részét képezi egy saját felszíni parkoló. A beálló árnyékos helyen van, de a lefedése már a társasház tervei között szerepel. A lakáshoz opcionálisan egy külön helyrajzi számon nyilvántartott, 3 nm-es tároló is vásárolható.
A környéken minden fontos szolgáltatás pár perces sétával elérhető. A lokáció és a modern felszereltség miatt a lakás befektetésnek is jó és értékálló választás, hiszen adottságainak köszönhetően könnyen kiadható.

Az OTP Ingatlanpont teljes körű, díjmentes ügyintézést biztosít, a finanszírozás előkészítésétől az adásvétel lebonyolításáig, kedvezményes hitellehetőségekkel.
További adatok
Telekterület: -
Kert mérete: -
Erkély mérete: 11 m2
Felszereltség: -
Parkolás: lakáshoz van kültéri parkoló
Kilátás: -
Egyéb extrák:  
Hirdető adatai
Hirdető neve: otpip.hu - Gárdony Bóné Kálmán utca 12 - OTP Ingatlanpont Iroda
Kapcsolattartó: Micskey Marianna Vanda
Hirdető telefonszáma: +36303229382
Honlap: -
 
Üzenetet küldhet a hirdetőnek, árajánlatot tehet az ingatlanra:
Az Ön neve:
Az Ön e-mail címe:
Üzenet: